立即预约 立即预约
免费定制整装家居

免费定制整装家居

一站置家 全程无忧 一省到底
hide.png

当前位置: 首页 > 装修案例效果图 > 旭辉东樾城

旭辉东樾城 120平 北欧风格效果图

收藏
案例风格 北欧 案例户型 三居 案例面积 120平米
楼盘名称 旭辉东樾城 设计师 林凤装饰设计师 案例类型 改善性住宅

设计理念:家里处处是细节,应该处处用心,客户因为是年轻人,所以对色彩十分讲究。喜欢丰富的色彩和干净的木色多结合。空间的利用率也要大大提高。

客厅
第1张
第2张
第3张
卧室
第1张
第2张
第3张
第4张
卫生间
第1张
厨房
第1张
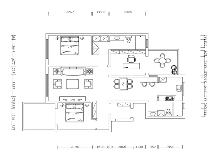
户型图
第1张
  • 案例详情

旭辉东樾城-120平-北欧风格-客厅 (2).jpg 旭辉东樾城-120平-北欧风格-客厅.jpg 旭辉东樾城-120平-北欧风格-首图.jpg

旭辉东樾城120平3居室北欧风格林凤装饰的客厅留在了入户门的位置.也选择了木质的餐桌和白色的简洁的吊灯。线条十分流畅,造型简单。设计感不夸张。

旭辉东樾城-120平-北欧风格-卧室(2).jpg 旭辉东樾城-120平-北欧风格-卧室.jpg 旭辉东樾城-120平-北欧风格-卧室(3).jpg 旭辉东樾城-120平-北欧风格-榻榻米.jpg

旭辉东樾城120平3居室北欧风格林凤装饰的卧室在北欧风格中主要我主要是选择了木质的材质,北欧比较注重小配饰的搭配。在这一点上我运用了床前的吊灯,整个卧室的设计上选择的极简主义,无印花。大衣柜使功能性也大大增加。

旭辉东樾城-120平-北欧风格-卫生间.jpg

旭辉东樾城120平3居室北欧风格林凤装饰的卫生间

旭辉东樾城-120平-北欧风格-厨房.jpg

旭辉东樾城120平3居室北欧风格林凤装饰的厨房

旭辉东樾城-120平-北欧风格-户型图.jpg

案例设计师

林凤装饰设计师

设计师:林凤装饰设计师

从业时间:11年

设计理念:处处是细节的家,应该处处用心

预约设计师

算算你家装修多少钱

报名即享丰厚赠品,品质装修

免费报价
咨询热线:400-656-9909
20190221103704574636.jpg

精品设计案例

20180612134930523248.jpg 服务号二维码.jpg