立即预约 立即预约
免费定制整装家居

免费定制整装家居

一站置家 全程无忧 一省到底
hide.png

当前位置: 首页 > 装修案例效果图 > 金地樾檀山

金地樾檀山 138平 中式风格效果图

收藏
案例风格 中式 案例户型 三居 案例面积 138平米
楼盘名称 金地樾檀山 设计师 林凤设计师 案例类型 改善性住宅

设计理念:金地樾檀山138平3居室林凤装饰以中式风格是人们将传统中国元素融入之中,也是体现传统古典艺术喜爱的表现,采用传统中式的家具线型,不再使用单一,古板的家具,借鉴风格,取其精华,去其糟粕。

客厅
第1张
第2张
餐厅
第1张
卧室
第1张
第2张
卫生间
第1张
厨房
第1张
书房
第1张
过廊
第1张
户型图
第1张
  • 案例详情

金地樾檀山-138平-中式风格-电视背景墙.jpg 金地樾檀山-138平-中式风格-客厅.jpg

金地樾檀山138平3居室中式风格林凤装饰的客厅是整个房子设计方向的中心,几乎所有的造型都集中在客厅,边棚吊顶在里面搭配一圈金属线,简单,注重细节感,中式风格的家具以实木为主,为了不让整体太压抑,我们只用木色做了点缀。

金地樾檀山-138平-中式风格-餐厅.jpg

金地樾檀山138平3居室中式风格林凤装饰的餐厅使用圆形吊顶,来搭配圆形餐桌,除了橱柜的使用空间,在餐桌对面做了两个酒柜,既方便又实用,地面的方形收边线,将餐厅与客厅相融合,充分体现出中式风格的特点和要素。

金地樾檀山-138平-中式风格-主卧.jpg 金地樾檀山-138平-中式风格-次卧.jpg

金地樾檀山138平3居室中式风格林凤装饰的卧室【主卧说明】主卧室是男女主人主要居住空间,放置衣柜提供足够的储物空间,床单和配饰以亮色为主,只有衣柜实用了木色,这样休息的时候心情会更加的轻松和愉悦。【次卧说明】卫生间干湿分离,洗衣机放在手盆的下面,使台面空间大大增加,原始的墙体比较厚,为了更好的运用空间,也做上了储物空间,磨砂的玻璃门保留了隐私的同时也使整个空间更加通透。

金地樾檀山-138平-中式风格-卫生间.jpg

金地樾檀山138平3居室中式风格林凤装饰的卫生间干湿分离,洗衣机放在手盆的下面,使台面空间大大增加,原始的墙体比较厚,为了更好的运用空间,也做上了储物空间,磨砂的玻璃门保留了隐私的同时也使整个空间更加通透。

金地樾檀山-138平-中式风格-厨房.jpg

金地樾檀山138平3居室中式风格林凤装饰的中式风格的厨房采用封闭厨房,当然实木橱柜是必不可少的,色彩的搭配不要过多,橱柜要和墙砖形成对比,橱柜门板都是木质的,没有使用玻璃门,这样看整个空间更加干净,整洁。

金地樾檀山-138平-中式风格-书房.jpg

金地樾檀山138平3居室中式风格林凤装饰的中式书房少不了的,就是字画了,散发出浓厚的书香,形成私密空间,中式的书桌方方正正,颜色比较重,给人稳重的感觉,有窗户的书房,当看书看累的时候也可以观看一下外面的风景。

金地樾檀山-138平-中式风格-过廊.jpg

金地樾檀山138平3居室中式风格林凤装饰的过廊进门有可以更换鞋子和衣服的鞋帽柜,在这个房间里通往每个房间都要走过廊,除了客厅,也是最注重设计感的空间了,没有过多复杂的吊顶和装饰,对着入户门放置了展示柜。形成一个玄关。

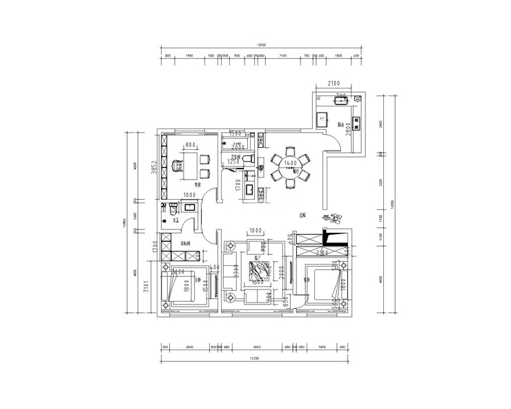
金地樾檀山-138平-中式风格-户型图.jpg

案例设计师

林凤设计师

设计师:林凤设计师

从业时间:0年

设计理念:

预约设计师

算算你家装修多少钱

报名即享丰厚赠品,品质装修

免费报价
咨询热线:400-656-9909
20190221103704574636.jpg

精品设计案例

20180612134930523248.jpg 服务号二维码.jpg