立即预约 立即预约
免费定制整装家居

免费定制整装家居

一站置家 全程无忧 一省到底
hide.png

当前位置: 首页 > 装修案例效果图 > 丽都新城

丽都新城 87平 现代简约风格效果图

收藏
案例风格 现代简约 案例户型 二居 案例面积 87平米
楼盘名称 丽都新城 设计师 郑婷婷 案例类型 改善性住宅

设计理念:丽都新城87平2居室现代风格林凤装饰整体选用蓝灰色作为主色调,搭配亮色作为点缀,整体呈现欢快活泼的气氛,适合年轻人居住。

客厅
第1张
第2张
餐厅
第1张
卧室
第1张
第2张
第3张
第4张
卫生间
第1张
厨房
第1张
第2张
门厅
第1张
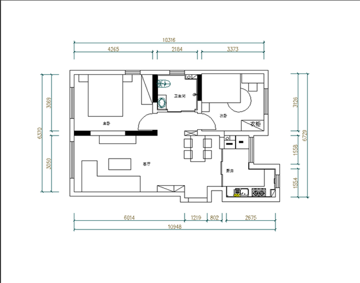
户型图
第1张
  • 案例详情

丽都新城-87平-现代风格-客厅.jpg 丽都新城-87平-现代风格-首图.jpg

丽都新城87平2居室现代风格林凤装饰的客厅选择布艺沙发,不仅美观而且好打理。电视背景墙选用环保的硅藻泥材料,淡蓝色的墙面搭配深蓝色的窗帘和粉红色的挂画打造温馨的客厅。

丽都新城-87平-现代风格-餐厅.jpg

丽都新城87平2居室现代风格林凤装饰的餐厅与卫生间之间定制通透的薄柜,更好的区分了房子的功能空间。餐厅背墙同样选择硅藻泥做造型,使餐厅显得不突兀。

丽都新城-87平-现代风格-次卧1.jpg 丽都新城-87平-现代风格-次卧2.jpg 丽都新城-87平-现代风格-主卧1.jpg 丽都新城-87平-现代风格-主卧2.jpg

丽都新城87平2居室现代风格林凤装饰的【主卧说明】:主卧选用灰色的床搭配淡粉色乳胶漆,使空间变得更加适合年轻人居住。软装配饰上选用与房间颜色相似的饰品搭配,窗帘的颜色选择相对跳跃的深蓝色; 丽都新城87平2居室现代风格林凤装饰的【次卧说明】:次卧选择传统的床和床头柜,使房间变得更加简洁干净,根据业主的喜好选择配套的梳妆台,提升次卧的使用率。

丽都新城-87平-现代风格-卫生间.jpg

丽都新城87平2居室现代风格林凤装饰的卫生间

丽都新城-87平-现代风格-厨房1.jpg 丽都新城-87平-现代风格-厨房2.jpg

丽都新城87平2居室现代风格林凤装饰的厨房

丽都新城-87平-现代风格-门厅.jpg

丽都新城87平2居室现代风格林凤装饰的玄关

丽都新城-87平-现代风格-户型图.jpg

案例设计师

郑婷婷

设计师:郑婷婷

从业时间:9年

设计理念:用心与住宅对话,交织出住宅中的灵魂所属

预约设计师

算算你家装修多少钱

报名即享丰厚赠品,享半价装修

免费报价
咨询热线:400-656-9909
20190221103704574636.jpg

精品设计案例

20180612134930523248.jpg 服务号二维码.jpg