立即预约 立即预约
免费定制整装家居

免费定制整装家居

一站置家 全程无忧 一省到底
hide.png

当前位置: 首页 > 装修案例效果图 > 绿城全运村

绿城全运村 83平 现代简约风格效果图

收藏
案例风格 现代简约 案例户型 二居 案例面积 83平米
楼盘名称 绿城全运村 设计师 王禹厶 案例类型 改善性住宅

设计理念:本案例定位为现代简约风格,带有一些新中式的元素。为了整体空间设计,我们没有做多余的线条装饰,造型夸张的物品,而是选择了具有自然、气质美的新中式家具,设计师通过不同的色彩与材料将整个空间搭配出以少胜多,以繁胜简的效果。

客厅
第1张
第2张
餐厅
第1张
卧室
第1张
第2张
卫生间
第1张
第2张
厨房
第1张
第2张
书房
第1张
门厅
第1张
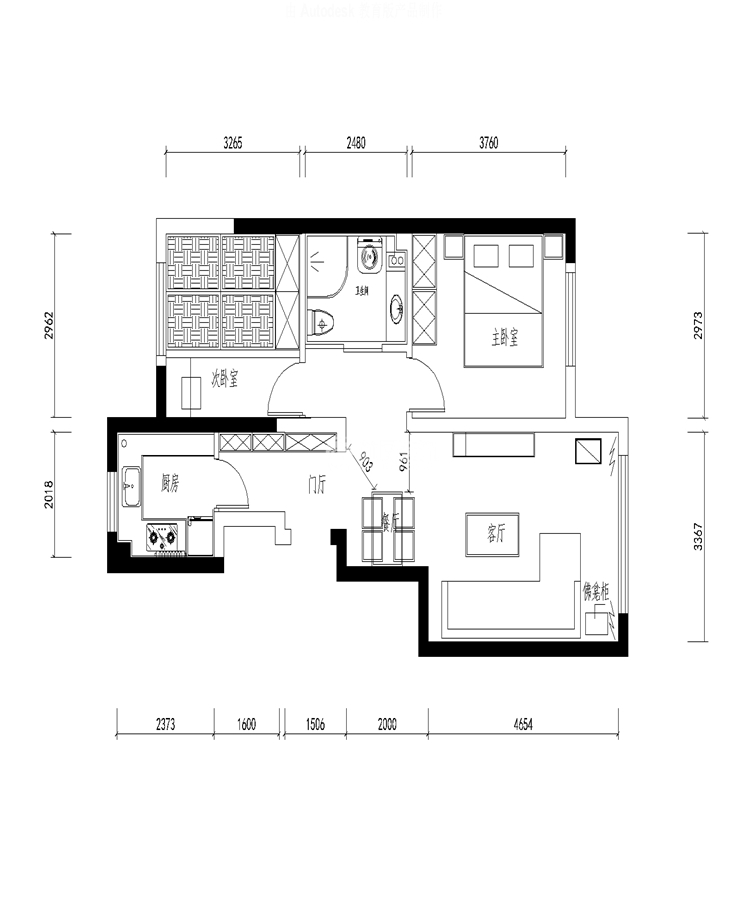
户型图
第1张
  • 案例详情

绿城全运村-83平-现代风格-客厅.jpg 绿城全运村-83平-现代风格-客厅2.jpg

客厅我们采用深灰作为主基调,深灰色的沙发搭配深褐色的茶几与带有干净白色的装饰画进行呼应。电视背景采用深色壁纸,和浅灰色的地砖相搭配,利用天棚简单的线条与瓷砖的纹理表现出简约的美感,是客厅更加轻松舒适。在家具运用上采取了传统中式的材料,使整个空间达到典雅又不失时尚的感觉。

绿城全运村-83平-现代风格-餐厅.jpg

餐厅空间不是很大,餐桌与棚顶的造型体现了流畅的线条美感,简单的吊灯与黄色的配饰表现出舒适温馨又具有现代效果,体现生活的质感与品质。

绿城全运村-83平-现代风格-卧室.jpg 绿城全运村-83平-现代风格-卧室2.jpg

卧室采用了传统中式的家具。整体空间采用了浅灰色和树木的棕色给人以沉稳的感觉。地板采用前色带有类似木纹纹理的线条,是整个卧室更有空间感和拉伸感。床头的高低错落的挂画与床上浅色的靠枕做为点睛之笔, 提升整体效果,为卧室增添了许多温情。

绿城全运村-83平-现代风格-卫生间.jpg 绿城全运村-83平-现代风格-卫生间2.jpg

卫生间采用地柜满足了储藏需求,颜色上运用浅色与深色的撞击,是整个空间具有层次感。内部结构比较普通,采用了带有玉屏的淋浴满足了客户的私密性。

绿城全运村-83平-现代风格-厨房.jpg 绿城全运村-83平-现代风格-厨房2.jpg

厨房采用了木色的橱柜,柜体的长度满足了储存空间的需求,根据厨房的比例选择了较大的冰箱,既保证了空间的效果还具有实用性,墙壁上的瓷砖在选择上表现出中式的风尘俱静,表现出新中式的和谐美。

绿城全运村-83平-现代风格-书房.jpg 绿城全运村-83平-现代风格-玄关.jpg 绿城全运村-83平-现代风格-平面图.jpg

案例设计师

王禹厶

设计师:王禹厶

从业时间:10年

设计理念:坚持原创,坚持一切美好

预约设计师

算算你家装修多少钱

报名即享丰厚赠品,享半价装修

免费报价
咨询热线:400-656-9909
20190221103704574636.jpg

精品设计案例

20180612134930523248.jpg 服务号二维码.jpg