立即预约 立即预约
免费定制整装家居

免费定制整装家居

一站置家 全程无忧 一省到底
hide.png

当前位置: 首页 > 装修案例效果图 > 金水花城

金水花城 120平 现代简约风格效果图

收藏
案例风格 现代简约 案例户型 二居 案例面积 120平米
楼盘名称 金水花城 设计师 白涵琦 案例类型 改善性住宅

设计理念:金水花城120平2居室林凤装饰以现代风格主体以黑白灰为主,屋内大量贴壁纸,室内储物空间较多,整体显得十分大气。

客厅
第1张
第2张
餐厅
第1张
卧室
第1张
第2张
卫生间
第1张
第2张
厨房
第1张
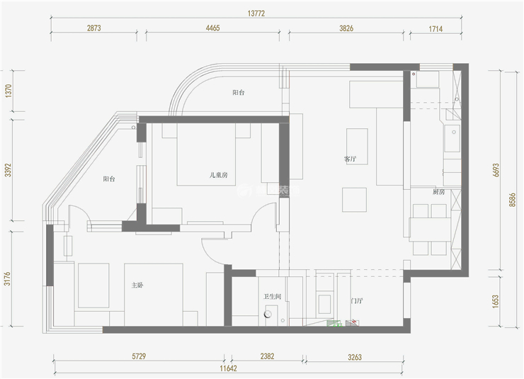
户型图
第1张
  • 案例详情

金水花城-120平-现代风格-客厅.jpg 金水花城-120平-现代风格-客厅1.jpg

金水花城120平2居室现代风格林凤装饰的客厅用大理石作电视背景墙,即显大气又不失设计感。电视柜选用连体式储物空间更大更方便。

金水花城-120平-现代风格-餐厅1.jpg

金水花城120平2居室现代风格林凤装饰的餐厅采用咖色的卡座搭配暖色灯光,令人食欲大增又不失设计感。

金水花城-120平-现代风格-主卧.jpg 金水花城-120平-现代风格-主卧1.jpg

金水花城120平2居室现代风格林凤装饰的主卧墙体整体以灰白为主,搭配白色纱帘与香槟色窗帘使得整体相互照应,床头上面小射灯新颖,飘窗即可以看外面的风景又可以休息,又设有梳妆台,女主早晨化妆更方便。

金水花城-120平-现代风格-卫生间.jpg 金水花城-120平-现代风格-卫生间1.jpg

金水花城120平2居室现代风格林凤装饰的卫生间采用干湿分离,柜台一体形式,又有上柜增加了储物空间。

金水花城-120平-现代风格-厨房.jpg

金水花城120平2居室现代风格林凤装饰的厨房瓷砖与柜子为白色,看起来整洁大方,给人一种愉悦的心情,冰箱放在厨房里更方便取物品。

金水花城-120平-现代风格-户型图.jpg

案例设计师

白涵琦

设计师:白涵琦

从业时间:10年

设计理念:设计实现客户家居梦想

预约设计师

算算你家装修多少钱

报名即享丰厚赠品,品质装修

免费报价
咨询热线:400-656-9909
20190221103704574636.jpg

精品设计案例

20180612134930523248.jpg 服务号二维码.jpg