立即预约 立即预约
免费定制整装家居

免费定制整装家居

一站置家 全程无忧 一省到底
hide.png

当前位置: 首页 > 装修案例效果图 > 旭辉东樾城

旭辉东樾城 300平 北欧风格效果图

收藏
案例风格 北欧 案例户型 四居 案例面积 300平米
楼盘名称 旭辉东樾城 设计师 林凤设计师 案例类型 改善性住宅

设计理念:旭辉东樾城300平4居室林凤装饰的装修风格定位为北欧风格,源于北欧瑞典地区,是改进型北欧风格,融合了很多现代元素,保留了北欧风的天然材质和线条简洁性。墙面局部做了灰绿色来增加立面的变化,地面以灰色地砖为主,搭配浅实木框架的家具。软装饰搭配纯棉,亚麻等天然材质,饰品摆件以陶器及多色玻璃。
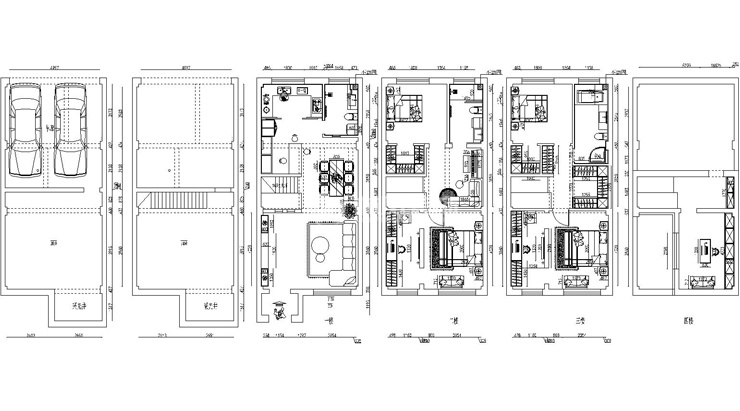
户型分析:
优点:本案例原始户型的客厅归方,举架高,餐厅位置合理,可扩建地方比较多,地下室有采光通风井,南区最南侧的房子不挡光。
缺点:无北花园,造成北侧楼间距小,卫生间采光通风不好,整体户型东西间距不够宽,南北过长。地下室五米举架比较低,原户型一楼靠近厨房有一个卧室,造成厨房过小,下水管道需要重新布局。

客厅
第1张
第2张
第3张
第4张
第5张
餐厅
第1张
卧室
第1张
第2张
厨房
第1张
户型图
第1张
  • 案例详情

旭辉东樾城-300平-北欧风格-客厅01.jpg 旭辉东樾城-300平-北欧风格-客厅03.jpg 旭辉东樾城-300平-北欧风格-客厅02.jpg 旭辉东樾城-300平-北欧风格-客厅04.jpg 旭辉东樾城-300平-北欧风格-首图.jpg

旭辉东樾城300平4居室北欧风格林凤装饰的客厅的沙发是设计师与业主以舒适性为主的基础上,再考虑材质、颜色和尺寸,经过多项选择的;因为业主不想要复杂的吊棚,所以在沙发背景墙做了洗墙灯槽,来丰富室内光线;南进户靠墙位置按左右对称的形式做了两个衣柜来增加一楼衣物储藏空间。

旭辉东樾城-300平-北欧风格-餐厅.jpg

旭辉东樾城300平4居室北欧风格林凤装饰的厨房经过拆改,改到了原卧室区域,划分出中厨和西厨,保证橱柜空间能放下很多电器、净水器和分水器。

旭辉东樾城-300平-北欧风格-卧室01.jpg 旭辉东樾城-300平-北欧风格-卧室02.jpg

旭辉东樾城300平4居室北欧风格林凤装饰的主卧室过大,不太适合睡眠,还需要储藏空间,混合在一起不容易整理。所以我在保证进户门口不正对床尾的基础上,把大卧室通过一个墙体隔成睡眠区和衣帽区,利用墙体还增加了挂电视的位置和衣帽区穿衣镜位置。

旭辉东樾城-300平-北欧风格-厨房.jpg

旭辉东樾城300平4居室北欧风格林凤装饰的厨房经过拆改,改到了原卧室区域,划分出中厨和西厨,保证橱柜空间能放下很多电器、净水器和分水器。

旭辉东樾城-300平-北欧风格-平面图.jpg

案例设计师

林凤设计师

设计师:林凤设计师

从业时间:20年

设计理念:您的梦想由我来实现。

预约设计师

算算你家装修多少钱

报名即享丰厚赠品,享半价装修

免费报价
咨询热线:400-656-9909
20190221103704574636.jpg

精品设计案例

20180612134930523248.jpg 服务号二维码.jpg