立即预约 立即预约
免费定制整装家居

免费定制整装家居

一站置家 全程无忧 一省到底
hide.png

当前位置: 首页 > 装修案例效果图 > 河畔公馆

河畔公馆 254平 现代简约风格效果图

收藏
案例风格 现代简约 案例户型 四居 案例面积 254平米
楼盘名称 河畔公馆 设计师 罗霄 案例类型 改善性住宅

设计理念:河畔公馆254平4居室现代风格林凤装饰的是一套河景房,业主期望有一个释放自我、充分放松的空间。因为业主是辽宁柔道队队员,所以设计师以色泽温暖的胡桃木、米灰色壁纸、灰色地砖,呈现出自然的生命脉络,让空间充满了自由呼吸的张力 。

客厅
第1张
第2张
餐厅
第1张
第2张
卧室
第1张
卫生间
第1张
第2张
厨房
第1张
第2张
休闲区
第1张
过廊
第1张
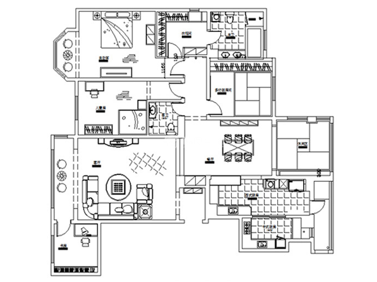
户型图
第1张
河畔公馆 -254平米-现代简约风格-大厅1.jpg 河畔公馆 -254平米-现代简约风格-大厅2.jpg

河畔公馆254平4居室现代风格林凤装饰的客厅采用直线边棚,利用筒灯的点光源和吊灯的散光源营造出一个舒适的光影效果。客厅的背景墙选用双拼色,白色部分与沙发、电视柜色彩相呼应。墙面的装饰画和灯具起到了画龙点睛的作用。

河畔公馆 -254平米-现代简约风格-餐厅1.jpg 河畔公馆 -254平米-现代简约风格-餐厅2.jpg

河畔公馆254平4居室现代风格林凤装饰的餐厅以胡桃色凳腿和灰色椅背组成的餐椅与客厅的胡桃木色沙发相互呼应,餐厅背景墙以米灰色为主加上金色摆件显示客户的年轻及时尚高调而不俗。

河畔公馆 -254平米-现代简约风格-主卧室 .jpg

河畔公馆254平4居室现代风格林凤装饰的卧室主要以淡黄色为主,卡其色床与墨绿窗帘温暖搭配,卡其色的床把米黄色的墙体与窗帘连接淋淋尽致,整个空间给人以温馨舒适的感觉。

河畔公馆 -254平米-现代简约风格-主卫生间1 .jpg 河畔公馆 -254平米-现代简约风格-主卫生间2.jpg

河畔公馆254平4居室现代风格林凤装饰的卫生间采用灰色亮光系列的地砖上墙铺法,棚顶用平整带有白色暗花的铝扣板做平棚与灰色墙砖所呼应,用定制式的浴屏来达到卫生间的干湿分离,从而使得卫生间区域明显、实用性更高。

河畔公馆 -254平米-现代简约风格-西式厨房.jpg 河畔公馆 -254平米-现代简约风格-中式厨房.jpg

河畔公馆254平4居室现代风格林凤装饰的厨房是中西式厨房,西式厨房蒸箱及烤箱代表业主对生活品质的追求,而中式厨房又体现中国的传统文化。西式厨房灰色的墙砖和灰色地砖色彩整体化一,再加上白色橱柜让整个厨房空间更加典雅。

河畔公馆 -254平米-现代简约风格-休闲区.jpg

河畔公馆254平4居室现代风格林凤装饰的休闲区

河畔公馆 -254平米-现代简约风格-过廊.jpg

河畔公馆254平4居室现代风格林凤装饰的过廊

河畔公馆 -254平米-现代简约风格-平面图.jpg

案例设计师

罗霄

设计师:罗霄

从业时间:17年

设计理念:唯有我的设计,方显你家的与众不同。

预约设计师

算算你家装修多少钱

报名即享丰厚赠品,享半价装修

免费报价
咨询热线:400-656-9909
20190221103704574636.jpg

精品设计案例

20180612134930523248.jpg 服务号二维码.jpg