立即预约 立即预约
免费定制整装家居

免费定制整装家居

一站置家 全程无忧 一省到底
hide.png

当前位置: 首页 > 装修案例效果图 > 富海澜湾半岛

富海澜湾半岛 300平 现代简约风格效果图

收藏
案例风格 现代简约 案例户型 四居 案例面积 300平米
楼盘名称 富海澜湾半岛 设计师 罗霄 案例类型 改善性住宅

设计理念:富海澜湾半岛300平4居室现代风格林凤装饰的是一套洋房(一楼带地下室),本案以浅色系为主调,采用现代的设计手法,使整个空间时尚与雅致并存,现代摩登感十足 。

客厅
第1张
第2张
第3张
餐厅
第1张
卧室
第1张
卫生间
第1张
厨房
第1张
书房
第1张
衣帽间
第1张
门厅
第1张
第2张
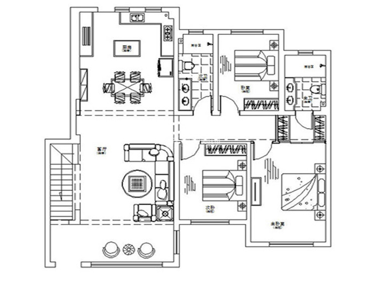
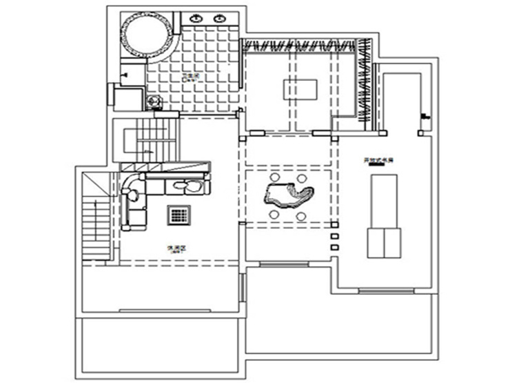
户型图
第1张
第2张
  • 案例详情

富海澜湾半岛-300平面-现代简约风格-地下室大厅1.jpg 富海澜湾半岛-300平面-现代简约风格-大厅.jpg 富海澜湾半岛-300平面-现代简约风格-地下室大厅2.jpg

富海澜湾半岛300平4居室现代风格林凤装饰的客厅楼上客餐厅的区域,装饰线条简洁大方,白色天花与爵士白地砖上下呼应,以营造出宽敞明亮的公共空间。客厅的背景墙,运用黑镜及灰色硬包构造成方块的造型,以镜钢收边,时尚的金属质感中透射出淡淡的贵族气息,背景中间再搭配上金属装饰,为空间起到了画龙点睛的作用。

富海澜湾半岛-300平面-现代简约风格-餐厅.jpg

富海澜湾半岛300平4居室现代风格林凤装饰的餐厅以仿檀木的烤漆凳腿和黑色椅背组成的餐椅与餐厅仿檀木的烤漆酒柜相互呼应。

富海澜湾半岛-300平面-现代简约风格-卧室.jpg

富海澜湾半岛300平4居室现代风格林凤装饰的卧室主要以黑白灰三种颜色,灰蓝色床与银灰色背景墙软包搭配,灰蓝色的床与黑色烤漆木门连接一体,整个空间给人以典雅舒适的感觉。

富海澜湾半岛-300平面-现代简约风格-卫生间.jpg

富海澜湾半岛300平4居室现代风格林凤装饰的卫生间运用玻璃隔断将干湿区分离,超大的镜子拓展了空间的视觉感,洗手台大理石 与墙地面的仿大理石瓷砖浑然一体,有一种清新淡雅的自然气息。

富海澜湾半岛-300平面-现代简约风格-厨房.jpg

富海澜湾半岛300平4居室现代风格林凤装饰的厨房采用开放式整体橱柜设计,以合理利用空间。白色大理石的台面与仿檀木的烤漆柜门形成鲜明对比,配以线条简洁的拉手,彰显着现代厨房设计的时尚新主张。

富海澜湾半岛-300平面-现代简约风格-地下室书房.jpg

富海澜湾半岛300平4居室现代风格林凤装饰的书房

富海澜湾半岛-300平面-现代简约风格-地下室衣帽间.jpg

富海澜湾半岛300平4居室现代风格林凤装饰的衣帽间

富海澜湾半岛-300平面-现代简约风格-入户玄关1.jpg 富海澜湾半岛-300平面-现代简约风格-入户玄关2.jpg

富海澜湾半岛300平4居室现代风格林凤装饰的玄关

富海澜湾半岛-300平面-现代简约风格-平面图楼上.jpg 富海澜湾半岛-300平面-现代简约风格-平面图楼下.jpg

案例设计师

罗霄

设计师:罗霄

从业时间:17年

设计理念:唯有我的设计,方显你家的与众不同。

预约设计师

算算你家装修多少钱

报名即享丰厚赠品,品质装修

免费报价
咨询热线:400-656-9909
20190221103704574636.jpg

精品设计案例

20180612134930523248.jpg 服务号二维码.jpg