立即预约 立即预约
免费定制整装家居

免费定制整装家居

一站置家 全程无忧 一省到底
hide.png

当前位置: 首页 > 装修案例效果图 > 金地艺境

金地艺境 143平 新中式风格效果图

收藏
案例风格 新中式 案例户型 四居 案例面积 143平米
楼盘名称 金地艺境 设计师 林凤设计师 案例类型 改善性住宅

设计理念:本案设计整体以淡雅含蓄,端庄丰华为主导,为业主打造一个极具层次,富有韵味的家。

客厅
第1张
餐厅
第1张
第2张
卧室
第1张
第2张
卫生间
第1张
第2张
厨房
第1张
阳台
第1张
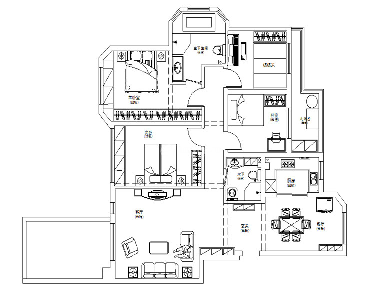
户型图
第1张
  • 案例详情

金地艺境-143平-新中式风格-客厅图.jpg

简洁宁静的客厅让人心情愉悦,棚面采用边棚装饰,既整洁有序又富有层次,搭上米黄色的地砖和边线,淡灰色与实木结合的实木沙发和木色电视柜,白色的电视背景墙,使得整个空间简洁有序,干练大气。

金地艺境-143平-新中式风格-餐厅2图.jpg 金地艺境-143平-新中式风格-餐厅图.jpg

木色的餐桌与客厅的淡灰色与实木结合的实木沙发相互呼应,背景墙以实木线条为主,显示客户的沉稳及时尚。

金地艺境-143平-新中式风格-主卧室图.jpg 金地艺境-143平-新中式风格-次卧图.jpg

主卧室说明:主卧室主要以米黄色为主,与实木家具温暖搭配,整个空间给人以温馨舒适的感觉。次卧室主要以米为主,点缀挂画,整个空间给人以简单淡雅的感觉。

金地艺境-143平-新中式风格-次卫生间图.jpg 金地艺境-143平-新中式风格-主卫生间图.jpg

主卫生间采用米色为主,实木洗手盆与理石纹理的台面结合,简约大气。

金地艺境-143平-新中式风格-厨房图.jpg

本案是封闭式厨房,厨柜采用木色门板,米色的墙砖,让整个厨房空间简洁,干净。

金地艺境-143平-新中式风格-阳台图.jpg 金地艺境-143平-新中式风格-户型图.jpg

案例设计师

林凤设计师

设计师:林凤设计师

从业时间:10年

设计理念:以人为本

预约设计师

算算你家装修多少钱

报名即享丰厚赠品,品质装修

免费报价
咨询热线:400-656-9909
20190221103704574636.jpg

精品设计案例

20180612134930523248.jpg 服务号二维码.jpg