立即预约 立即预约
免费定制整装家居

免费定制整装家居

一站置家 全程无忧 一省到底
hide.png

当前位置: 首页 > 装修案例效果图 > 中粮隆玺世家

中粮隆玺世家 167平 新中式风格效果图

收藏
案例风格 新中式 案例户型 三居 案例面积 167平米
楼盘名称 中粮隆玺世家 设计师 林凤装饰设计师 案例类型 改善性住宅

设计理念:新中式风格主要包括两方面的基本内容:一是中国传统风格文化意义在当前时代背景下的演绎;二是对中国当代文化充分理解基础上的当代设计。新中式风格不是纯粹的传统元素堆砌,而是通过对传统文化的认识,将现代元素和传统元素结合在一起,以现代人的审美需求来打造富有传统韵味的事物,让传统艺术在当今社会得到合适的体现。

客厅
第1张
第2张
第3张
第4张
餐厅
第1张
第2张
卧室
第1张
第2张
书房
第1张
门厅
第1张
过廊
第1张
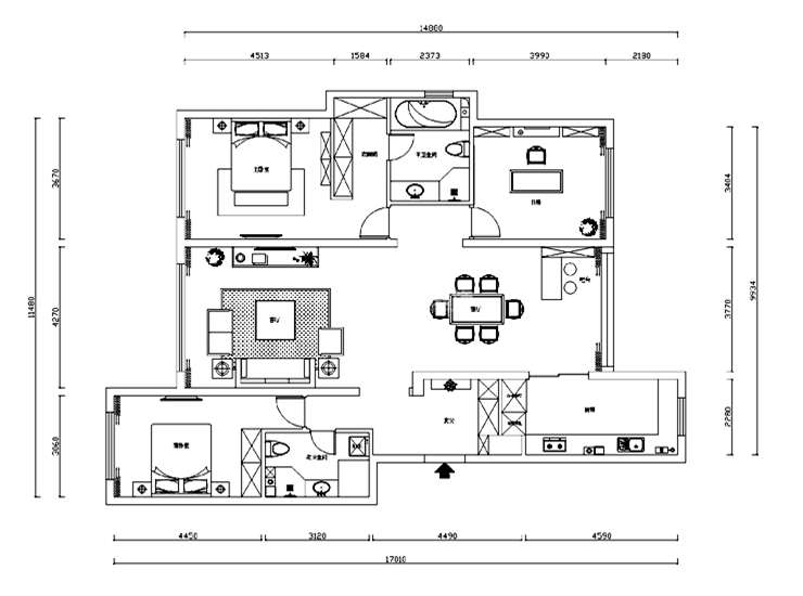
户型图
第1张
  • 案例详情

中粮隆玺世家-167平-新中式风格-客厅.jpg 中粮隆玺世家-167平-新中式风格-客厅1.jpg 中粮隆玺世家-167平-新中式风格-客厅2.jpg 中粮隆玺世家-167平-新中式风格-客厅3.jpg

客厅电视背景采用天然理石和实木的有机结合就一副完美的水墨画,提升了文化底蕴,沙发背景墙采用木质花格和硬包的装饰而且硬包上用铜钉做出中式的回形纹图案,大面积采用亚麻墙布进行装饰,很好的体现中式风格

中粮隆玺世家-167平-新中式风格-餐厅1.jpg 中粮隆玺世家-167平-新中式风格-餐厅.jpg

餐厅选用了圆形的餐桌,这样才能体现出中国传统的家文化,逢年过节家人在一起团聚其乐融融的景象,客户自己写的字画来装点自己的餐厅突出房主的才华。

中粮隆玺世家-167平-新中式风格-次卧.jpg 中粮隆玺世家-167平-新中式风格-主卧.jpg

根据居住人的不同需求,而设计,完美的结合了房间建筑结构的特点,充分体现了房间的舒适性。

中粮隆玺世家-167平-新中式风格-书房.jpg 中粮隆玺世家-167平-新中式风格-首图门厅.jpg 中粮隆玺世家-167平-新中式风格-过廊.jpg 中粮隆玺世家-167平-新中式风格-平面图.jpg

案例设计师

林凤装饰设计师

设计师:林凤装饰设计师

从业时间:15年

设计理念:人为生活而设计,设计为生活而存在

预约设计师

算算你家装修多少钱

报名即享丰厚赠品,品质装修

免费报价
咨询热线:400-656-9909
20190221103704574636.jpg

精品设计案例

20180612134930523248.jpg 服务号二维码.jpg