立即预约 立即预约
免费定制整装家居

免费定制整装家居

一站置家 全程无忧 一省到底
hide.png

当前位置: 首页 > 装修案例效果图 > 五矿紫晶御府

五矿紫晶御府 180平 新古典风格效果图

收藏
案例风格 新古典 案例户型 三居 案例面积 180平米
楼盘名称 五矿紫晶御府 设计师 林凤装饰设计师 案例类型 改善性住宅

设计理念:新古典主义的设计风格其实是经过改良的古典主义风格。欧洲文化丰富的艺术底蕴,开放、创新的设计思想及其尊贵的姿容,一直以来颇受众人喜爱与追求。新古典风格从简单到繁杂、从整体到局部,精雕细琢,镶花刻金都给人一丝不苟的印象。一方面保留了材质、色彩的大致风格,仍然可以很强烈地感受传统的历史痕迹与浑厚的文化底蕴,同时又摒弃了过于复杂的肌理和装饰,简化了线条。

客厅
第1张
第2张
餐厅
第1张
第2张
卧室
第1张
第2张
卫生间
第1张
第2张
儿童房
第1张
门厅
第1张
第2张
过廊
第1张
第2张
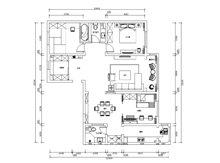
户型图
第1张
  • 案例详情

五矿紫晶御府-180平-新古典风格-客厅2.jpg 五矿紫晶御府-180平-新古典风格-客厅1.jpg

本户型是由一套115平米和一套65平米的房子打通连在一起的180平米房子把原有的厨房改成衣帽间这样就解决了客户对收纳的需求,客厅电视背景采用天然爵士白大理石制作,加上雕花和罗马柱造型,完美的体现了奢华新古典的风格,沙发背景采用立体浮雕的造型,表面做贴银箔处理和电视背景进行结合,棚面用石膏线进行造型增加层次感,让新古典风格得到完美的体现。

五矿紫晶御府-180平-新古典风格-餐厅.jpg 五矿紫晶御府-180平-新古典风格-餐厅1.jpg

独立的餐厅配以新古典的餐厅,和雕花的椅子既高贵又浪漫。

五矿紫晶御府-180平-新古典风格-榻榻米.jpg 五矿紫晶御府-180平-新古典风格-主卧室.jpg

两位男孩选用了上下铺,留出更多的空间玩耍和学习。

五矿紫晶御府-180平-新古典风格-次卫生间.jpg 五矿紫晶御府-180平-新古典风格-主卫生间.jpg 五矿紫晶御府-180平-新古典风格-儿童房.jpg 五矿紫晶御府-180平-新古典风格-玄关1.jpg 五矿紫晶御府-180平-新古典风格-玄关首图.jpg 五矿紫晶御府-180平-新古典风格-过廊.jpg 五矿紫晶御府-180平-新古典风格-过廊2.jpg 五矿紫晶御府-180平-新古典风格-平面图.jpg

案例设计师

林凤装饰设计师

设计师:林凤装饰设计师

从业时间:15年

设计理念:人为生活而设计,设计为生活而存在

预约设计师

算算你家装修多少钱

报名即享丰厚赠品,享半价装修

免费报价
咨询热线:400-656-9909
20190221103704574636.jpg

精品设计案例

20180612134930523248.jpg 服务号二维码.jpg