立即预约 立即预约
免费定制整装家居

免费定制整装家居

一站置家 全程无忧 一省到底
hide.png

当前位置: 首页 > 装修案例效果图 > 保利康桥

保利康桥 207平 欧式风格效果图

收藏
案例风格 欧式 案例户型 三居 案例面积 207平米
楼盘名称 保利康桥 设计师 林凤装饰设计师 案例类型 改善性住宅

设计理念:保利康桥207平4居室欧式风格林凤装饰的业主为一家三口,一对中年夫妇是成功人士,孩子在国外定居不经常回国需要保姆照顾房主的生活起居,房主喜欢成熟稳重的家居风格,尤其对欧式风格情有独钟。

客厅
第1张
第2张
第3张
第4张
餐厅
第1张
第2张
卧室
第1张
卫生间
第1张
第2张
厨房
第1张
门厅
第1张
第2张
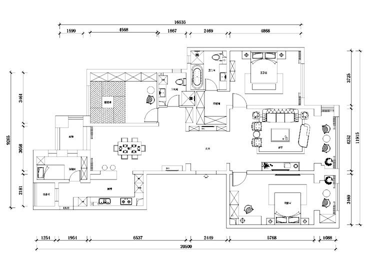
户型图
第1张
  • 案例详情

保利康桥-207平-欧式风格-客厅1.jpg 保利康桥-207平-欧式风格-客厅3.jpg 保利康桥-207平-欧式风格-客厅2.jpg 保利康桥-207平-欧式风格-客厅4.jpg

房间全部采用中央空调,吊棚的时候既要考虑到如何将空调封闭到棚里又要考虑空间的高度还要考虑棚面的层次感,所以采用双层石膏线的设计,把空调出风口与虚光灯槽相结合,完美的解决了以上的问题,电视背景墙和沙发背景墙各有一个卧室门,采用了墙板和隐藏门设计的形式很好的解决了这一问题,也很好的诠释了欧式风格,实木墙板的颜色体现了空间的厚重感同时和欧式家具进行了完美的结合。

保利康桥-207平-欧式风格-餐厅2.jpg 保利康桥-207平-欧式风格-餐厅1.jpg

餐厅的墙面局部采用了墙板的设计和客厅形成呼应,厨房采用开放式设计在满足厨房的使用功能同时增加餐厅的空间感。

保利康桥-207平-欧式风格-主卧.jpg

卧室采用壁纸与墙板的结合再次凸显欧式的风格。

保利康桥-207平-欧式风格-次卫生间.jpg 保利康桥-207平-欧式风格-主卫.jpg 保利康桥-207平-欧式风格-厨房.jpg 保利康桥-207平-欧式风格-门厅2.jpg 保利康桥-207平-欧式风格-门厅1.jpg 保利康桥-207平-欧式风格-平面图.jpg

案例设计师

林凤装饰设计师

设计师:林凤装饰设计师

从业时间:15年

设计理念:人为生活而设计,设计为生活而存在

预约设计师

算算你家装修多少钱

报名即享丰厚赠品,享半价装修

免费报价
咨询热线:400-656-9909
20190221103704574636.jpg

精品设计案例

20180612134930523248.jpg 服务号二维码.jpg