立即预约 立即预约
免费定制整装家居

免费定制整装家居

一站置家 全程无忧 一省到底
hide.png

当前位置: 首页 > 装修案例效果图 > 华润幸福里

华润幸福里 87平 现代简约风格效果图

收藏
案例风格 现代简约 案例户型 二居 案例面积 87平米
楼盘名称 华润幸福里 设计师 林凤装饰设计师 案例类型 改善性住宅

设计理念:本案的设计以实用美观为主题。整体大色调为浅色,使室内空间看起来明亮宽敞,配以金属和部分深色家具,使整个空间丰富且不单调。

客厅
第1张
餐厅
第1张
卧室
第1张
第2张
第3张
卫生间
第1张
厨房
第1张
门厅
第1张
户型图
第1张
  • 案例详情

华润幸福里-87平-现代风格-客厅2.jpg

客厅基调选择了浅灰色为主色调,加以白色的舒适度高的三人沙发,并配以橙色的单椅,形成色彩对比。电视背景墙没有采用传统的铺贴壁纸方式,而是采用了石材上墙并在其中融合入金属条,是客厅的一大亮点。

华润幸福里-87平-现代风格-餐厅.jpg 华润幸福里-87平-现代风格-次卧.jpg 华润幸福里-87平-现代风格-次卧2.jpg 华润幸福里-87平-现代风格-主卧.jpg

主卧室说明:卧室整体采用了深色系,整个空间萦绕着沉稳舒适的氛围。一字型的衣柜完美的满足了业主的储物需求。柜门采用了透视的玻璃门,让易乱的衣物服帖的归入衣柜,给人一种干净整洁的感觉。

华润幸福里-87平-现代风格-卫生间.jpg

浴室延续了整体色彩,整体采用了米色系的瓷砖,统一有着不同。米白色的瓷砖搭配使整体看起来干净简洁。

华润幸福里-87平-现代风格-厨房.jpg

业主平时饮食习惯倾向于传统的中国菜 所以选择了封闭式厨房方便日常生活,阻隔了油烟进入客厅。厨房采用了黑白灰的设计,上柜浅下柜深形成了色彩上的对比,给人一种干净整洁的感觉。

华润幸福里-87平-现代风格-玄关.jpg

业主对于鞋柜不是特别在意存在感,嵌入式的鞋柜是最完美的选择,弱化柜子的存在。并采用了隔断隔开了玄关与客厅,避免了开门直对客厅的不舒适感。

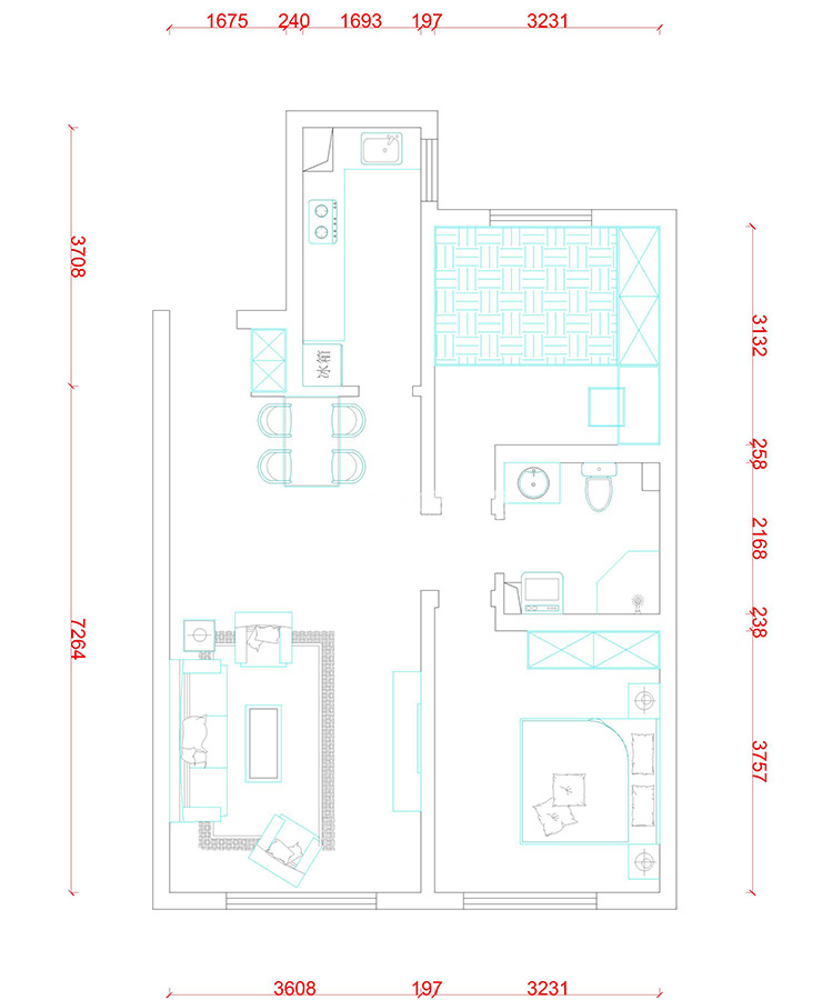
华润幸福里-87平-现代风格-户型图.jpg

案例设计师

林凤装饰设计师

设计师:林凤装饰设计师

从业时间:7年

设计理念:为生活着色

预约设计师

算算你家装修多少钱

报名即享丰厚赠品,享半价装修

免费报价
咨询热线:400-656-9909
20190221103704574636.jpg

精品设计案例

20180612134930523248.jpg 服务号二维码.jpg