立即预约 立即预约
免费定制整装家居

免费定制整装家居

一站置家 全程无忧 一省到底
hide.png

当前位置: 首页 > 装修案例效果图 > 中航城•两河流域

中航城•两河流域 87平 美式风格效果图

收藏
案例风格 美式 案例户型 二居 案例面积 87平米
楼盘名称 中航城•两河流域 设计师 林凤装饰设计师 案例类型 婚房

设计理念:本方案我们不能只考虑眼前,也要为业主考虑到以后会增加人口的概率,小卧室的榻榻米,大大的解决了储藏空间和入住空间。所以我们要将本案打造成,简约美式实用性相结合的方案!

客厅
第1张
第2张
第3张
餐厅
第1张
卧室
第1张
第2张
卫生间
第1张
厨房
第1张
过廊
第1张
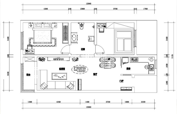
户型图
第1张
  • 案例详情

中航城·两河流域-87平-简美风格-客厅.jpg 中航城·两河流域-87平-简美风格-客厅1.jpg 中航城·两河流域-87平-简美风格-电视墙.jpg

客厅简单的做了石膏直线棚,配合电视墙的实木造型,给人的感觉不一样的效果,体现简美的简约而不失尊贵。

中航城·两河流域-87平-简美风格-餐厅.jpg

开放的餐厅,不仅在家居生活上是一种新体验,搭配实木的餐桌,造型酒柜,直线条和柔美的曲线相结合,营造低调又内涵的美式文化。

中航城·两河流域-87平-简美风格-客卧室.jpg 中航城·两河流域-87平-简美风格-主卧室.jpg 中航城·两河流域-87平-简美风格-卫生间.jpg

卫生间我们将瓷砖的选择比较跳跃的瓷砖颜色,在色彩搭配上我们尽量做到多样话,使空间很小的卫生间也能发挥极致。

中航城·两河流域-87平-简美风格-厨房.jpg

厨房整体灰色瓷砖,配上白色橱柜的厨房是女主人的活动空间,那么在色彩上做出了温馨的感觉,主人的小资生活会更品味舒适。

中航城·两河流域-87平-简美风格-过廊.jpg 中航城·两河流域-87平-简美风格-平面图.jpg

案例设计师

林凤装饰设计师

设计师:林凤装饰设计师

从业时间:10年

设计理念:设计师不但要引领潮流、还要融入生活

预约设计师

算算你家装修多少钱

报名即享丰厚赠品,品质装修

免费报价
咨询热线:400-656-9909
20190221103704574636.jpg

精品设计案例

20180612134930523248.jpg 服务号二维码.jpg