立即预约 立即预约
免费定制整装家居

免费定制整装家居

一站置家 全程无忧 一省到底
hide.png

当前位置: 首页 > 装修案例效果图 > 鑫丰御景华庭

鑫丰御景华庭 103平 现代简约风格效果图

收藏
案例风格 现代简约 案例户型 二居 案例面积 103平米
楼盘名称 鑫丰御景华庭 设计师 林凤装饰设计师 案例类型 改善性住宅

设计理念:本方案以现代的风格为主题,运用石膏板造型和壁纸、乳胶漆进行色彩调配,让屋内显得格外的自然和谐,屋内功能性全面,空间功能性最大化。

客厅
第1张
第2张
第3张
餐厅
第1张
第2张
卧室
第1张
卫生间
第1张
厨房
第1张
门厅
第1张
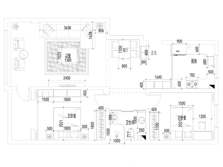
户型图
第1张
  • 案例详情

鑫丰御景华庭-103㎡-现代风格-客厅 (1).jpg 鑫丰御景华庭-103㎡-现代风格-客厅 (3).jpg 鑫丰御景华庭-103㎡-现代风格-客厅 (4).jpg

地面米色大理石纹理瓷砖,让整体室内空间更加温馨。背景墙利用石膏板及壁纸搭配让造型更加层次分明,利用茶色烤漆雕花玻璃体现出时尚而又大气,棚面石膏板边棚采用和背景墙壁纸一致,让墙棚整体一致。

鑫丰御景华庭-103㎡-现代风格-餐厅 (2).jpg 鑫丰御景华庭-103㎡-现代风格-餐厅.jpg

墙爬棚的造型给餐厅空间带来别致的感觉,提升空间的视觉,餐厅的墙面和客厅采用一致的硅藻泥,让室内整体空间感一致。

鑫丰御景华庭-103㎡-现代风格-卧室.jpg

浅黄色乳胶漆墙体搭配着舒适的软包床头和白色的床品给人一种干净舒适的心灵净化。棚上简单的石膏线让空间更加层次分明,自然和谐。

鑫丰御景华庭-103㎡-现代风格-卫生间.jpg

坐便后利用花片搭配让卫生间提升了立体美观。AB板的深浅墙砖加之腰线的搭配,给人一种层次的分明,让空间更加立体和谐。

鑫丰御景华庭-103㎡-现代风格-厨房.jpg

大理石纹理的墙砖和深灰的石英石台面搭配给厨房表现出高端的感觉,黄色的烤漆柜门搭配着合理的厨具用品,让厨房空间 更加温馨灵动。

鑫丰御景华庭-103㎡-现代风格-玄关.jpg 鑫丰御景华庭-103㎡-现代风格-平面图.jpg

案例设计师

林凤装饰设计师

设计师:林凤装饰设计师

从业时间:10年

设计理念:设计师不但要引领潮流、还要融入生活

预约设计师

算算你家装修多少钱

报名即享丰厚赠品,享半价装修

免费报价
咨询热线:400-656-9909
20190221103704574636.jpg

精品设计案例

20180612134930523248.jpg 服务号二维码.jpg