立即预约 立即预约
免费定制整装家居

免费定制整装家居

一站置家 全程无忧 一省到底
hide.png

当前位置: 首页 > 装修案例效果图 > 伴山湖

伴山湖 240平 港式风格效果图

收藏
案例风格 港式 案例户型 三居 案例面积 240平米
楼盘名称 伴山湖 设计师 林凤装饰设计师 案例类型 改善性住宅

设计理念:客厅以黄色为主调,展现一个温馨舒适的氛围,电视墙处理相当简洁而富品味,背景墙与棚面的结合突出了房子的空间感是客厅的焦点所在,港式风格设计简洁自然,展现出的是港式家居风格。客厅中自然的木质色调使居室充满温馨舒适的氛围,是快节奏都市生活的休憩的港湾。

客厅
第1张
第2张
餐厅
第1张
第2张
卧室
第1张
第2张
第3张
第4张
厨房
第1张
休闲区
第1张
过廊
第1张
户型图
第1张
第2张
第3张
  • 案例详情

伴山湖-240平-港式风格-客厅.jpg 伴山湖-240平-港式风格-首图餐厅.jpg

客厅背景采用原木地板与棚面完美的结合,充分的体现出房子的空间感,以及打破传统的设计思维模式,还很好的解决了原始建筑的缺陷,达到最完美的效果呈现。

伴山湖-240平-港式风格-餐厅1.jpg 伴山湖-240平-港式风格-餐厅2.jpg

餐厅时尚的酒柜以原木材料和黑镜的完美结合体现了现代奢华,以及开放吧台,是家人制造欢乐和浪漫的地方。

伴山湖-240平-港式风格-次卧2.jpg 伴山湖-240平-港式风格-次卧室1.jpg 伴山湖-240平-港式风格-主卧2.jpg 伴山湖-240平-港式风格-主卧1.jpg

主卧室说明:根据居住人的不同需求而设计,完美的结合了房间建筑结构的特点,充分体现了房间的舒适性。二楼主卧室住的是中年夫妇,背景墙选用软包的装饰材料,三楼是年青的小夫妻选用现代时尚黑白灰装饰元素。

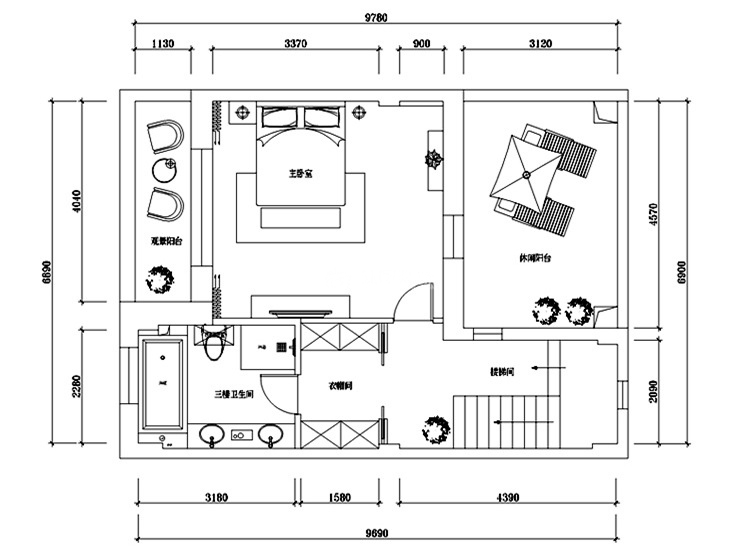
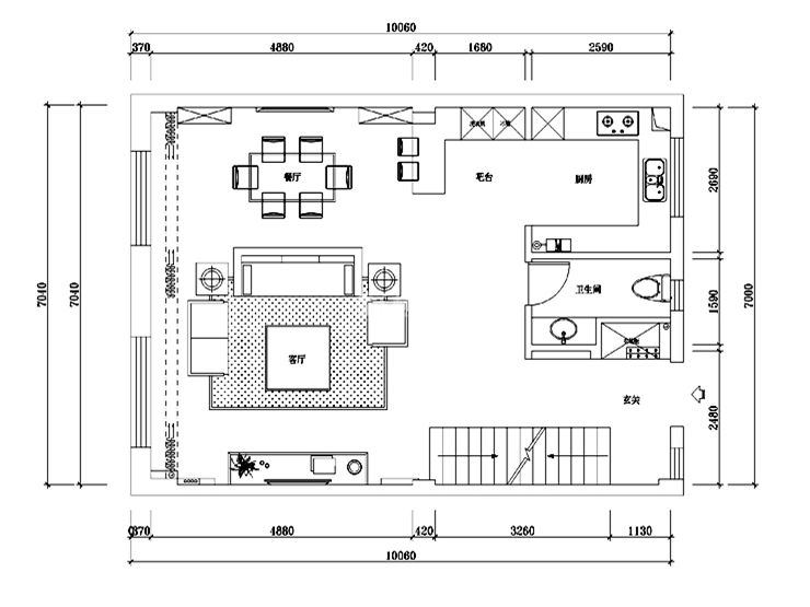
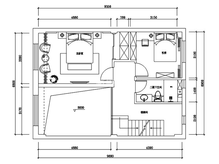
伴山湖-240平-港式风格-厨房.jpg 伴山湖-240平-港式风格-吧台1.jpg 伴山湖-240平-港式风格-楼梯间.jpg 伴山湖-240平-港式风格-二层平面图.jpg 伴山湖-240平-港式风格-三层平面图.jpg 伴山湖-240平-港式风格-一层平面图.jpg

案例设计师

林凤装饰设计师

设计师:林凤装饰设计师

从业时间:15年

设计理念:人为生活而设计,设计为生活而存在

预约设计师

算算你家装修多少钱

报名即享丰厚赠品,品质装修

免费报价
咨询热线:400-656-9909
20190221103704574636.jpg

精品设计案例

20180612134930523248.jpg 服务号二维码.jpg