立即预约 立即预约
免费定制整装家居

免费定制整装家居

一站置家 全程无忧 一省到底
hide.png

当前位置: 首页 > 装修案例效果图 > 远洋大河宸章

远洋大河宸章 140平 现代简约风格效果图

收藏
案例风格 现代简约 案例户型 三居 案例面积 140平米
楼盘名称 远洋大河宸章 设计师 林凤装饰设计师 案例类型 改善性住宅

设计理念:本案是现代风格为主的设计。现代风格外形简约,空间感宽敞明亮,搭配彩钢条造型 使空间更有层次感。

客厅
第1张
第2张
第3张
餐厅
第1张
第2张
卧室
第1张
第2张
卫生间
第1张
第2张
厨房
第1张
第2张
门厅
第1张
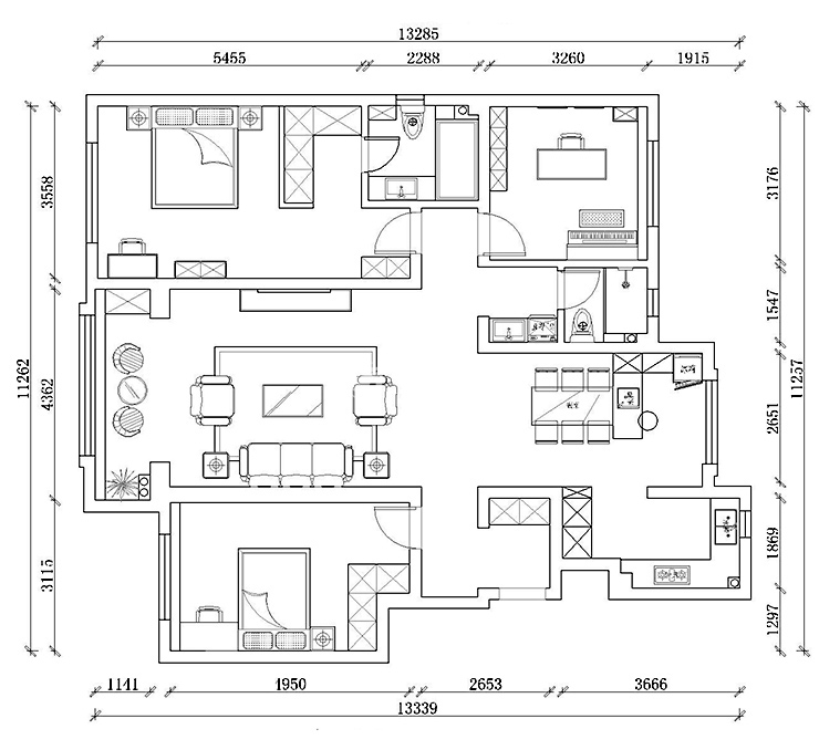
户型图
第1张
  • 案例详情

远洋大河宸章-140平-现代风格-客厅2.jpg 远洋大河宸章-140平-现代风格-客厅1.jpg 远洋大河宸章-140平-现代风格-客厅3.jpg

因为室内采光度并不是很高,所以整个空间都以白色为主,电视背景墙白色墙面也过于单调,采用石膏线、石膏板抽缝,搭配彩钢条,有层次感又不失单调。

远洋大河宸章-140平-现代风格-餐厅.jpg 远洋大河宸章-140平-现代风格-餐厅2.jpg

餐厅空间还是不小的,单独倒台柜的设计 有内嵌的小水槽,业主平常可以洗洗水果,喝喝茶水,带来很大的便利。

远洋大河宸章-140平-现代风格-主卧室.jpg 远洋大河宸章-140平-现代风格-主卧室2.jpg

卧室床头背景采用蓝色乳胶漆,压低整体空间的色调,给业主创造出更舒适的居住环境。创造出幽微、充满层次的空间感。

远洋大河宸章-140平-现代风格-卫生间.jpg 远洋大河宸章-140平-现代风格-卫生间2.jpg

卫生间采用干湿分离的设计,手盆外置 让使用卫生间和洗漱互不影响,卫生间内玻璃浴屏,方便打理。

远洋大河宸章-140平-现代风格-厨房1.jpg 远洋大河宸章-140平-现代风格-厨房2.jpg

米白的橱柜,门板采用的亮面亚克力,颜色加材质是想让整个暗厨房更加明亮宽敞,厨房采用高柜设计 内嵌烤箱 蒸箱,烹饪更加便利 增大厨房的储物空间。

远洋大河宸章-140平-现代风格-门厅.jpg 远洋大河宸章-140平-现代风格-平面.jpg

案例设计师

林凤装饰设计师

设计师:林凤装饰设计师

从业时间:6年

设计理念:设计源于生活,生活因设计而改变。

预约设计师

算算你家装修多少钱

报名即享丰厚赠品,享半价装修

免费报价
咨询热线:400-656-9909
20190221103704574636.jpg

精品设计案例

20180612134930523248.jpg 服务号二维码.jpg