立即预约 立即预约
免费定制整装家居

免费定制整装家居

一站置家 全程无忧 一省到底
hide.png

当前位置: 首页 > 装修案例效果图 > 保利茉莉公馆

保利茉莉公馆 134平 现代简约风格效果图

收藏
案例风格 现代简约 案例户型 三居 案例面积 134平米
楼盘名称 保利茉莉公馆 设计师 丁强 案例类型 改善性住宅

设计理念:保利茉莉公馆134平3居室现代风格装修效果图设计理念是打造舒适的居住环境,把每一个空间做到舒适的在最大化,让客户真正的体验到家居舒适度给人们带来的幸福感。其次是用配饰来装点局部空间,让整个空间赋予美感。

客厅
第1张
餐厅
第1张
卧室
第1张
第2张
卫生间
第1张
第2张
厨房
第1张
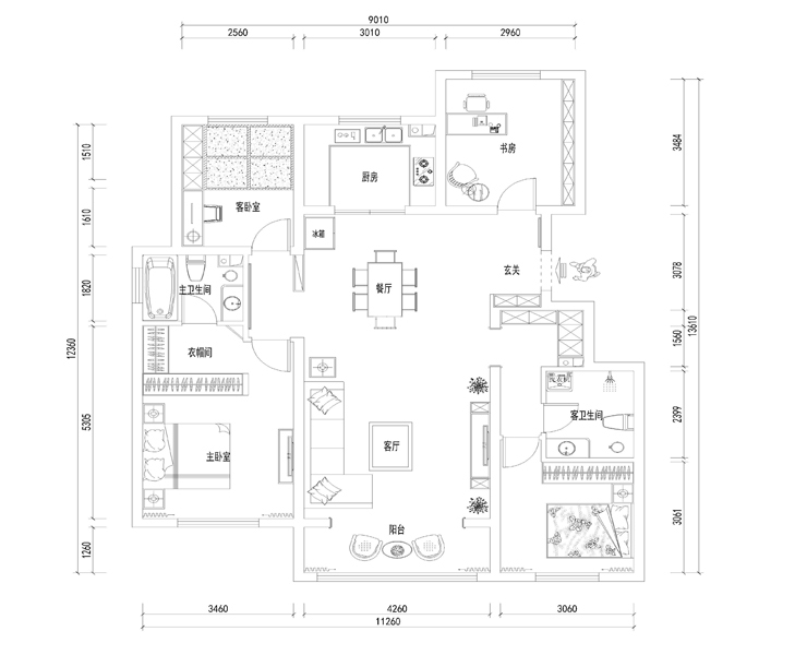
户型图
第1张
  • 案例详情

保利茉莉公馆-134平-现代风格-首图.jpg

客厅的地面采用800*800灰色大理石抛釉砖,灰色瓷砖是当下比较流行的颜色,也比较好搭配家具,背景墙两侧采用深灰色护墙板,中间采用大理石瓷砖拼接,两侧护墙板中间用壁灯做点缀,墙面采用灰色壁布做底色,客厅的吊顶采用直线边棚。

保利茉莉公馆-134平-现代风格-餐厅.jpg

餐厅是跟客厅衔接的,为了保持客厅与餐厅的协调性在餐厅部门没有做太多的修饰,而是采用大气的吊顶作为基调,餐厅与过廊之间用酒柜做过度,合理利用空间。

保利茉莉公馆-134平-现代风格-客卧室.jpg 保利茉莉公馆-134平-现代风格-主卧室.jpg 保利茉莉公馆-134平-现代风格-主卧卫生间.jpg 保利茉莉公馆-134平-现代风格-客厅卫生间.jpg

客厅卫生间与主卧卫生间均采用大理石纹理瓷砖,主卧卫生间用的是灰色大理石纹瓷砖而客厅卫生间则采用爵士白瓷砖,让主卫与客卫形成强烈的对比,让客户在两个卫生间的感受都是不一样的。

保利茉莉公馆-134平-现代风格-厨房.jpg

厨房的墙砖采用300*600米白色的墙砖作为基底,橱柜上柜和下柜分别采用白色和灰色,这两种颜色是现代风格当中最常用的颜色,烟机用的是侧吸油烟机器。

保利茉莉公馆-134平-现代风格-平面图.jpg

案例设计师

丁强

设计师:丁强

从业时间:8年

设计理念:用心观察生活,感悟人生真谛,让设计与生活互动

预约设计师

算算你家装修多少钱

报名即享丰厚赠品,品质装修

免费报价
咨询热线:400-656-9909
20190221103704574636.jpg

精品设计案例

20180612134930523248.jpg 服务号二维码.jpg