立即预约 立即预约
免费定制整装家居

免费定制整装家居

一站置家 全程无忧 一省到底
hide.png

当前位置: 首页 > 装修案例效果图 > 全运村

全运村 127平 美式风格效果图

收藏
案例风格 美式 案例户型 三居 案例面积 127平米
楼盘名称 全运村 设计师 林凤装饰设计师 案例类型 改善性住宅

设计理念:本案例定位为美式风格,墙面与家具的颜色挑选上,多以天然、怀旧、散发着质朴气味的颜色为主,全体朴素、怀旧、靠近大自然。

客厅
第1张
第2张
第3张
餐厅
第1张
卧室
第1张
卫生间
第1张
厨房
第1张
儿童房
第1张
门厅
第1张
过廊
第1张
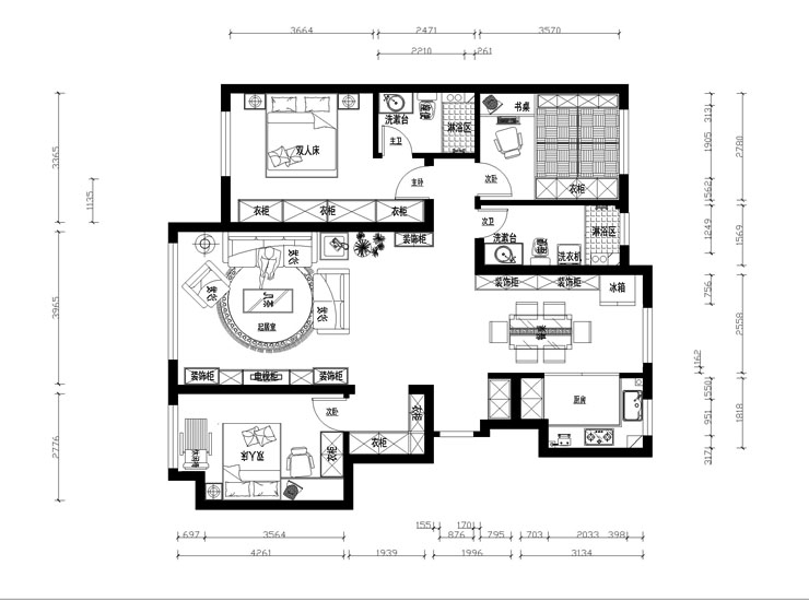
户型图
第1张
  • 案例详情

全运村-127平-美式风格-客厅.jpg 全运村-127平-美式风格-电视背景.jpg 全运村-127平-美式风格-首图.jpg

客厅采用复古地砖通铺,整体墙面以暖色为主,吊棚采用边棚加石膏线吊顶,中间选用八头欧式吊灯,使整个空间富有厚重的韵味,沙发采用美式古典家具,电视两侧分别放有装饰柜,加大了储藏空间。

全运村-127平-美式风格-餐厅.jpg

餐桌餐椅选用具有美式特点的实木家具,在餐桌侧面的墙壁加了一排酒柜,既可以增加储藏空间又可以使整个空间更具有格调,吊棚选用与客厅相呼应的边棚加石膏线吊顶,中间选用六头美式吊灯。

全运村-127平-美式风格-卧室.jpg 全运村-127平-美式风格-卫生间.jpg 全运村-127平-美式风格-厨房.jpg 全运村-127平-美式风格-儿童房.jpg

儿童房是一位10岁的男孩,所以选用了以蓝色为主的乳胶漆进行滚刷,地板采用暖色系实木地板,使整个空间看起来活泼而明亮。

全运村-127平-美式风格-门厅.jpg 全运村-127平-美式风格-过廊.jpg 全运村-127平-美式风格-平面布局图.jpg

案例设计师

林凤装饰设计师

设计师:林凤装饰设计师

从业时间:4年

设计理念:以人为本,设计改变生活。

预约设计师

算算你家装修多少钱

报名即享丰厚赠品,享半价装修

免费报价
咨询热线:400-656-9909
20190221103704574636.jpg

精品设计案例

20180612134930523248.jpg 服务号二维码.jpg