立即预约 立即预约
免费定制整装家居

免费定制整装家居

一站置家 全程无忧 一省到底
hide.png

当前位置: 首页 > 装修案例效果图 > 华润幸福里

华润幸福里 130平 田园风格效果图

收藏
案例风格 田园 案例户型 三居 案例面积 130平米
楼盘名称 华润幸福里 设计师 林凤装饰设计师 案例类型 婚房

设计理念:本案例定位为美式田园风格,推崇自然回归自然,在室内环境中力求表现休闲、舒畅、娱乐的生活情趣,并巧妙设置室内绿化,大胆进行色彩搭配,创造自然、简朴、高雅的氛围。

客厅
第1张
第2张
第3张
餐厅
第1张
卫生间
第1张
厨房
第1张
儿童房
第1张
休闲区
第1张
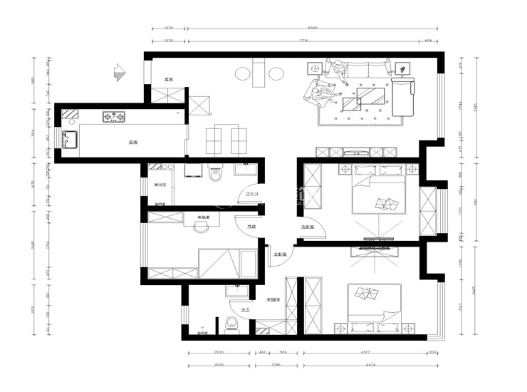
户型图
第1张
  • 案例详情

华润幸福里-130平-美式田园风格-客厅,过廊.jpg 华润幸福里-130平-美式田园风格-客厅.jpg 华润幸福里-130平-美式田园风格-首图.jpg

客厅采用美式复古砖通铺,墙面采用冷绿色乳胶漆进行粉刷,吊顶运用简约而不简单的石膏线进行装饰,电视背景墙选用木质和石材搭配的美式壁炉,达到质朴的自然风情,在色彩上跟随家具主色调,彰显迷人的古典风情。

华润幸福里-130平-美式田园风格-餐厅.jpg

美式田园风餐厅装修突出一种田园的自然之美,整体氛围有一种回归自然的感觉,自然古朴的氛围中选用了混色搭配的餐桌餐椅,在整个搭配空间中突出彩色椅子的存在感,顶灯采用吊型扇灯,金属质感在炎热的夏天进餐有一丝凉爽的感觉,餐厅与厨房相连,采用美式酒吧常用的蓝色马蹄门进行装饰,从而给人一种敞开而神秘的感觉。

华润幸福里-130平-美式田园风格-卫生间.jpg

卫生间墙砖采用155*155cm的蓝白复古砖进行铺贴,干湿分离用红砖砌筑而不是玻璃隔断,从而达到田园的风格。

华润幸福里-130平-美式田园风格-厨房.jpg 华润幸福里-130平-美式田园风格-儿童房.jpg 华润幸福里-130平-美式田园风格-吧台.jpg 华润幸福里-130平-美式田园风格-平面布局图.jpg

案例设计师

林凤装饰设计师

设计师:林凤装饰设计师

从业时间:4年

设计理念:以人为本,设计改变生活。

预约设计师

算算你家装修多少钱

报名即享丰厚赠品,享半价装修

免费报价
咨询热线:400-656-9909
20190221103704574636.jpg

精品设计案例

20180612134930523248.jpg 服务号二维码.jpg