立即预约 立即预约
免费定制整装家居

免费定制整装家居

一站置家 全程无忧 一省到底
hide.png

当前位置: 首页 > 装修案例效果图 > 碧桂园凤鸣岐山

碧桂园凤鸣岐山 400平 美式风格效果图

收藏
案例风格 美式 案例户型 别墅 案例面积 400平米
楼盘名称 碧桂园凤鸣岐山 设计师 胡迪 案例类型 改善性住宅

设计理念:本案的设计是以美式为主的设计,考虑到屋主日后生活需宁静舒适,以简洁明亮的北欧做为全屋风格。柔软无压的大地色系,使人心情感到放松。将灰色的深与浅巧妙搭配,即便没有复杂的色彩。依旧可以营造出清晰的层次感。

客厅
第1张
第2张
餐厅
第1张
卧室
第1张
卫生间
第1张
厨房
第1张
儿童房
第1张
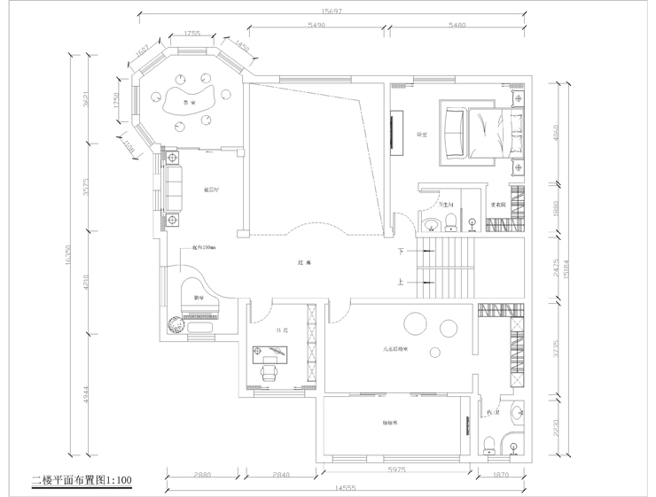
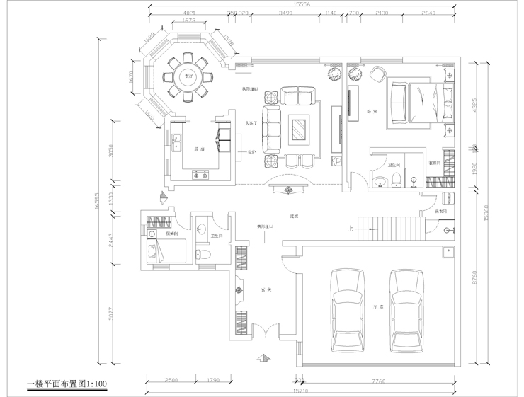
户型图
第1张
第2张
  • 案例详情

碧桂园凤鸣岐山-400平-美式风格-客厅B.jpg 碧桂园凤鸣岐山-400平-美式风格-客厅A.jpg

美式客厅风格较多采用嵌入式石膏吊顶,搭配精致的水晶吊顶,营造出一种怀旧、浪漫的感觉。以大理石作为地面装饰材料,光泽感佳,在沙发区铺上大幅花纹地毯,使空间区域划分更加清晰。复古造型的组合沙发,以及茶几都具有上乘的质感,让美式古典风格得以进一步的彰显。

碧桂园凤鸣岐山-400平-美式风格-餐厅.jpg

美式风格餐厅带有矩形图案的地砖,强调出餐厅空间的所属范围。粗犷、大气的美式餐桌椅,搭配复古造型的角几,让人迷失在时光隧道中。窗帘采用双层设计,一层为奢华的提花布,另一层则为轻薄的纱帘,兼顾了保护隐私与透光性。 美式风格家具特点:用材多为实木,多以桃花木、樱桃木、枫木及松木制作。家具表面精心涂饰和雕刻,表现出独特的美式风格家居特色。

碧桂园凤鸣岐山-400平-美式风格-主卧室.jpg

美式家居的卧室布置较为温馨,作为主人的私密空间,主要以功能性和实用舒适为考虑的重点,一般的卧室不设顶灯,多用温馨柔软的成套布艺来装点,同时在软装和用色上统一。

碧桂园凤鸣岐山-400平-美式风格-卫生间.jpg 碧桂园凤鸣岐山-400平-美式风格-厨房.jpg

厨房地面与客厅通铺地砖砖,墙面白色瓷砖搭配原木色橱柜,灰色麻点台面耐脏易打理,敞开式厨房规划,使整体空间通透大气。

碧桂园凤鸣岐山-400平-美式风格-儿童房.jpg 碧桂园凤鸣岐山-400平-美式风格-二层.jpg 碧桂园凤鸣岐山-400平-美式风格-一层.jpg

案例设计师

胡迪

设计师:胡迪

从业时间:14年

设计理念:设计以人为本

预约设计师

算算你家装修多少钱

报名即享丰厚赠品,品质装修

免费报价
咨询热线:400-656-9909
20190221103704574636.jpg

精品设计案例

20180612134930523248.jpg 服务号二维码.jpg