立即预约 立即预约
免费定制整装家居

免费定制整装家居

一站置家 全程无忧 一省到底
hide.png

当前位置: 首页 > 装修案例效果图 > 伯爵世家

伯爵世家 191平 北欧风格效果图

收藏
案例风格 北欧 案例户型 三居 案例面积 191平米
楼盘名称 伯爵世家 设计师 杨达 案例类型 改善性住宅

设计理念:随着社会经济的发展,人们生活水平的提高,越来越多的人们喜欢上了,简单,大气,彰显生活品质的居住场所,此设计是给一对年轻的夫妇,要求希望可以居住在一个具有色彩搭配,充满设计感。

  • 案例详情

伯爵世家-191平-北欧风格-地下室客厅.jpg 伯爵世家-191平-北欧风格-地下室客厅 (3).jpg

客厅以浅灰色作为空间的主色调,让空间给人的感觉更加的开阔。除了浅灰色之外,又选用了高纯度的蓝色作为点缀,活跃了空间的色彩。

伯爵世家-191平-北欧风格-餐厅.jpg

吧台式餐厅,闲暇时间可以跟朋友欢聚一堂。餐厅强调自由自在,放松共进早晚餐的空间,简洁明了时尚。

伯爵世家-191平-北欧风格-卧室 (2).jpg 伯爵世家-191平-北欧风格-卧室.jpg

卧室是主人休息放松的地方,业主家是北欧风格所以运用了经典的浅灰色系列,整体比较时尚,舒适,简洁。

伯爵世家-191平-北欧风格-卫生间.jpg 伯爵世家-191平-北欧风格-卫生间(2).jpg

整个卫生间主色调是采用经典的白色。白色的地砖和墙砖充分体现了北欧风格简洁和方便实用的特点。

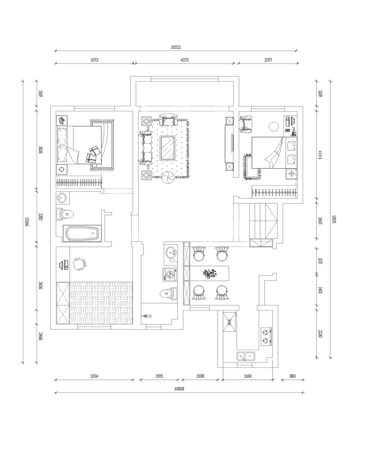
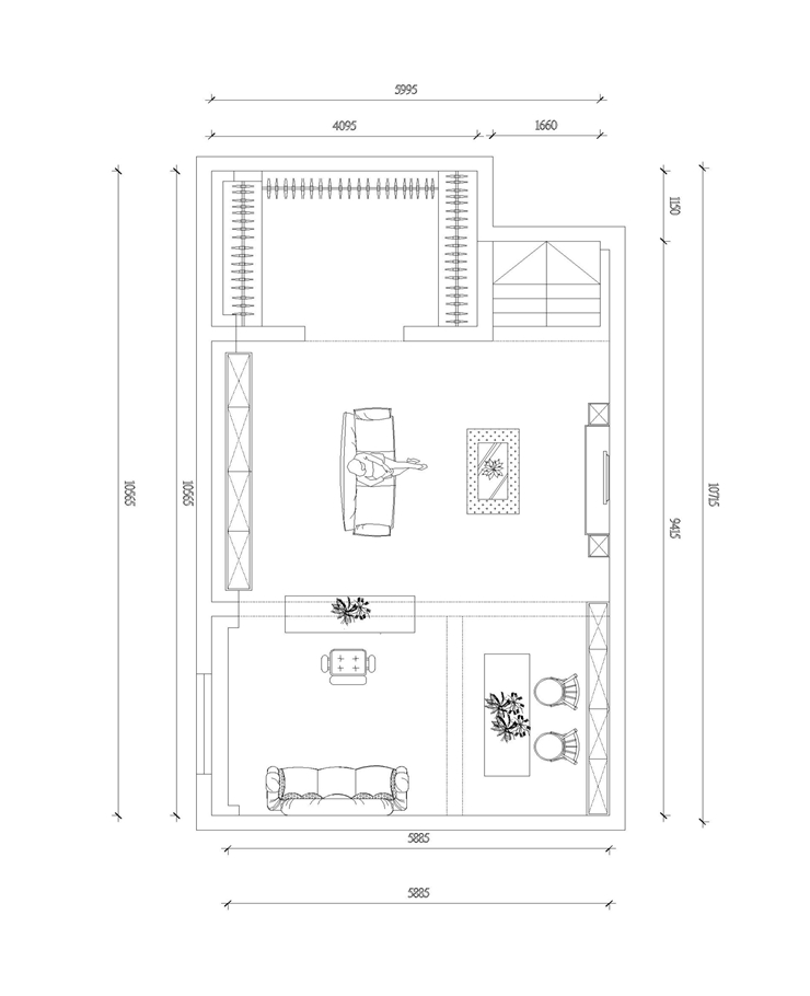
伯爵世家-191平-北欧风格-地下室.jpg 伯爵世家-191平-北欧风格-地下室 (2).jpg 伯爵世家-191平-北欧风格-地下室吧台.jpg 伯爵世家-191平-北欧风格-地下室-餐厅.jpg 伯爵世家-191平-北欧风格-地下室客厅 (3).jpg 伯爵世家-191平-北欧风格-地下室客厅.jpg 伯爵世家-191平-北欧风格-二楼户型图.jpg 伯爵世家-191平-北欧风格-一楼户型图.jpg

案例设计师

杨达

设计师:杨达

从业时间:10年

设计理念:精雕细琢,返璞归真。

预约设计师

算算你家装修多少钱

报名即享丰厚赠品,享半价装修

免费报价
咨询热线:400-656-9909
20190221103704574636.jpg

精品设计案例

20180612134930523248.jpg 服务号二维码.jpg