立即预约 立即预约
免费定制整装家居

免费定制整装家居

一站置家 全程无忧 一省到底
hide.png

当前位置: 首页 > 装修案例效果图 > 龙湖西府原著

龙湖西府原著 85平 田园风格效果图

收藏
案例风格 田园 案例户型 二居 案例面积 85平米
楼盘名称 龙湖西府原著 设计师 林凤设计师 案例类型 改善性住宅

设计理念:田园风格是当下比较流行的装修风格,在原有的简美风格基础上,大胆的搭配了清新色系作为修饰,明亮而简单,更能体现主人年轻韵味。

客厅
第1张
第2张
第3张
第4张
餐厅
第1张
第2张
第3张
卧室
第1张
卫生间
第1张
厨房
第1张
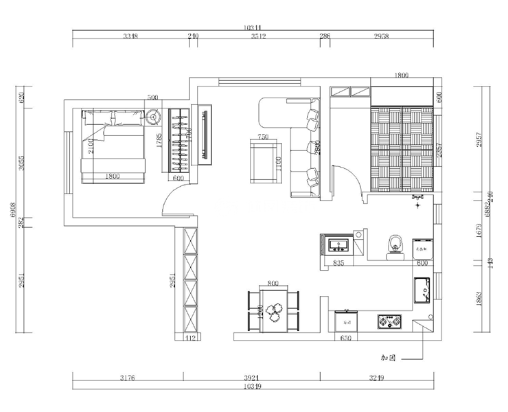
户型图
第1张
  • 案例详情

龙湖西府原著-85平-田园风格-客厅 (1).jpg 龙湖西府原著-85平-田园风格-客厅 (3).jpg 龙湖西府原著-85平-田园风格-客厅 (2).jpg 龙湖西府原著-85平-田园风格-客厅 (4).jpg

电视背景墙面积比较小,搭配此风格不需要太多的修饰背景墙,简单的利用了装饰性隔板作为简单的背景墙,凸显简洁。

龙湖西府原著-85平-田园风格-餐厅 (2).jpg 龙湖西府原著-85平-田园风格-餐厅 (1).jpg 龙湖西府原著-85平-田园风格-餐厅 (3).jpg

餐厅在进门的右侧,非常的规整的空间,正好适合一个正常的餐区空间,距离厨房非常近更加的方便。

龙湖西府原著-85平-田园风格-卧室.jpg

卧室采用米白色系,暖暖的居住气息,充斥整个房间,床头用闭住材质做了回字的图案更有立体感,大部分白色作为衬色,主卧的窗帘选择了棕黄相间的颜色。凸显整体色彩。

龙湖西府原著-85平-田园风格-卫生间.jpg

卫生间采干湿分离用大气的白瓷片,浴柜在外面这种设计非常适合现在奋斗中的青年人,加大使用空间,能够互补干绕。干净,好打理。

龙湖西府原著-85平-田园风格-厨房.jpg

厨房装修,橱柜考虑的是白色的门板,配合墙面白墙砖,立体感很强。空间感变大。

龙湖西府原著-85平-田园风格-平面图.png

案例设计师

林凤设计师

设计师:林凤设计师

从业时间:7年

设计理念:合理划分空间,让设计融入生活。

预约设计师

算算你家装修多少钱

报名即享丰厚赠品,享半价装修

免费报价
咨询热线:400-656-9909
20190221103704574636.jpg

精品设计案例

20180612134930523248.jpg 服务号二维码.jpg