立即预约 立即预约
免费定制整装家居

免费定制整装家居

一站置家 全程无忧 一省到底
hide.png

当前位置: 首页 > 装修案例效果图 > 阳光100凤凰社

阳光100凤凰社 100平 现代简约风格效果图

收藏
案例风格 现代简约 案例户型 二居 案例面积 100平米
楼盘名称 阳光100凤凰社 设计师 林凤装饰设计师 案例类型 改善性住宅

设计理念:本案整体风格是现代风格,现代风格是一种比较流行的的风格,重视功能和空间组织,强调设计与实际生活的联系

客厅
第1张
第2张
第3张
第4张
餐厅
第1张
卧室
第1张
卫生间
第1张
厨房
第1张
门厅
第1张
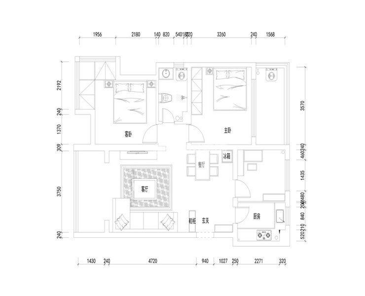
户型图
第1张
  • 案例详情

阳光100凤凰社-105平-现代风格-背景墙.jpg 阳光100凤凰社-105平-现代风格-客厅 (5).jpg 阳光100凤凰社-105平-现代风格-客厅 (1).jpg 阳光100凤凰社-105平-现代风格-客厅 (6).jpg

空间开敞,内外通透自由开放,设计简单、通俗、清新、接近客户的生活状态

阳光100凤凰社-105平-现代风格-餐厅.jpg

餐厅干净的白色墙面,搭配现代白色餐桌黑色餐椅具有强烈的体感。餐厅区独立,为业主及家人提供舒适的生活空间感。

阳光100凤凰社-105平-现代风格-卧室.jpg

卧室的整体色调都是灰色,深色的大床体和窗饰凸显主人的尊贵,卧室内的吊棚增加了整体的立体效果。

阳光100凤凰社-105平-现代风格-卫生间.jpg

整个卫生间和厨房用的是一种灰色调,灰色即为冷色调,显得朴素而又不失大体。灰色墙面与原木浴室柜搭配色彩和谐。

阳光100凤凰社-105平-现代风格-厨房.jpg

整个厨房的装修颜色上以灰色墙面为主,没有华丽的装饰点缀,白色整体橱柜的设计和大理石的台面显得非常素雅,有着强烈的对比空间感。

阳光100凤凰社-105平-现代风格-玄关.jpg 阳光100凤凰社-105平-现代风格-平面图.jpg

案例设计师

林凤装饰设计师

设计师:林凤装饰设计师

从业时间:10年

设计理念:设计是具有灵魂的。从生活出发,在生活中思考,让生活升华。实用与形式美感相互融合,满足功能需求及精神需求,使“家”这个私属空间更方便、更舒适、更个性、更能表达主人生活的态度。

预约设计师

算算你家装修多少钱

报名即享丰厚赠品,享半价装修

免费报价
咨询热线:400-656-9909
20190221103704574636.jpg

精品设计案例

20180612134930523248.jpg 服务号二维码.jpg