立即预约 立即预约
免费定制整装家居

免费定制整装家居

一站置家 全程无忧 一省到底
hide.png

当前位置: 首页 > 装修案例效果图 > 旭辉东樾城 ︱现代轻奢

旭辉东樾城 ︱现代轻奢 500平 轻奢风格效果图

收藏
案例风格 轻奢 案例户型 别墅 案例面积 500平米
楼盘名称 旭辉东樾城 设计师 白涵琦 案例类型 改善性住宅

设计理念:本案为现代轻奢风格,运用各种金属线条和颜色来达到高级的轻奢感觉。业主是一家四口,对设计风格要求很高,有自己想要的特定空间,想让空间大气美观一些。

客厅
第1张
第2张
餐厅
第1张
卧室
第1张
卫生间
第1张
第2张
第3张
厨房
第1张
阳台
第1张
书房
第1张
儿童房
第1张
第2张
第3张
休闲区
第1张
第2张
第3张
第4张
衣帽间
第1张
户型图
第1张
第2张
第3张
第4张
第5张
第6张
旭辉东樾城  500平  现代轻奢 客厅.jpg 旭辉东樾城  500平  现代轻奢 首图.jpg

客厅空间宽敞,电视背景墙运用大理石,金属线条作为点缀,凸显大气,使空间更上档次。客厅上方吊顶是玻璃,使空间更加明亮,显得举架更高,电视背景墙上方是挑空,皮质沙发和理石茶几都能凸显出现代轻奢风格,沙发背后有楼梯,楼梯下作了景观,使空间更美观。

旭辉东樾城  500平  现代轻奢 餐厅.jpg

餐厅在一楼,与客厅相邻,与厨房空间一起,六人位白色理石餐桌连接岛台白色在整个厨房空间中凸显出来,干净整洁大气美观。

旭辉东樾城  500平  现代轻奢 主卧.jpg

主卧室床头背景墙为灰色和白色硬包,压金属扣条,使空间更加上档次。金属吊灯和金属边框的挂画点缀整个空间,视觉效果更好。黑白主色的边柜是空间色彩对比更加明显,使整个空间更加饱满,主卧作了套件有开放式衣帽间和卫生间更加高大上。

旭辉东樾城  500平  现代轻奢 主卫生间 .jpg 旭辉东樾城  500平  现代轻奢 次卫生间.jpg 旭辉东樾城  500平  现代轻奢 主卫生间.jpg

主卫采用灰白色纹路墙砖和地砖搭配蓝色浴室柜,用带有金属镶边的玻璃隔断隔开衣帽间,使空间在视觉效果上扩大,独立的圆形大浴缸很有仪式感,同时还设有淋浴间。次卫的配色更加温馨,壁龛的设计让整个空间更加有层次,既方便储物又在视觉效果上更加美观。

旭辉东樾城  500平  现代轻奢 厨房.jpg

厨房是开放式,运用暖灰色调,采用浅灰色的柜体和理石台面,更能渲染氛围。理石材质的餐桌和岛台是整个空间呼应客厅主题的关键,棚面没做传统的集成吊灯做了防潮石膏板,更加美观。

旭辉东樾城  500平  现代轻奢 露台.jpg 旭辉东樾城  500平  现代轻奢 茶室.jpg

顶层设有佛堂茶室业主需求,茶室作为休闲闲情雅致的空间。

旭辉东樾城  500平  现代轻奢 男孩房.jpg 旭辉东樾城  500平  现代轻奢 女儿房.jpg 旭辉东樾城  500平  现代轻奢 女儿房 .jpg

男孩房运用蓝灰色墙面与木色地板颜色碰撞,空间做有衣帽间,有私人储物空间,女孩空间就很少女了,粉红色的床头背景墙加上公主床进行搭配很梦幻的感觉,搭配一个斗柜让空间不是特别空旷还可以摆放小物件,床尾摆放书桌中间用玻璃屏风作为遮挡整个空间还很符合女孩的心思还很实用。

旭辉东樾城  500平  现代轻奢 佛堂.jpg 旭辉东樾城  500平  现代轻奢 休闲室 .jpg 旭辉东樾城  500平  现代轻奢 酒吧.jpg 旭辉东樾城  500平  现代轻奢 休闲室.jpg

由于家里空间够大就做出了一个小酒吧的功能,一面墙都打上酒柜做上玻璃门很高级的感觉,酒柜前边配有小岛台白色理石,黑色的酒柜与白色岛台相碰撞。

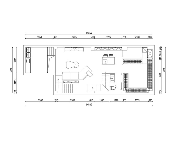
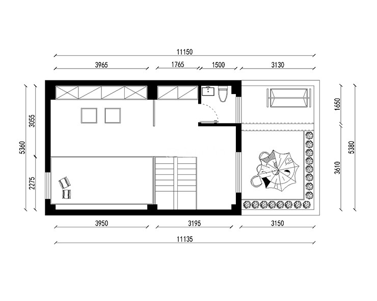
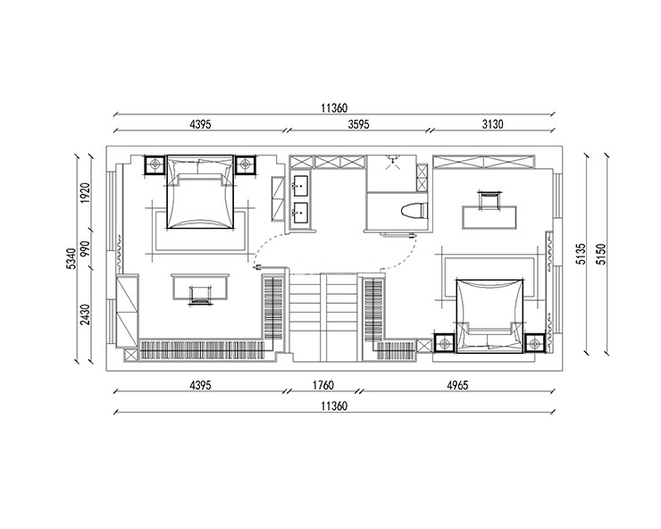
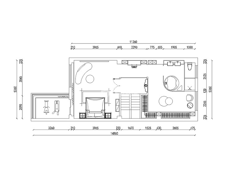
旭辉东樾城  500平  现代轻奢 衣帽间.jpg 旭辉东樾城  500平  现代轻奢 二层户型图.jpg 旭辉东樾城  500平  现代轻奢 负二户型图.jpg 旭辉东樾城  500平  现代轻奢 负一户型图.jpg 旭辉东樾城  500平  现代轻奢 三层户型图.jpg 旭辉东樾城  500平  现代轻奢 四层户型图.jpg 旭辉东樾城  500平  现代轻奢 一层户型图.jpg

案例设计师

白涵琦

设计师:白涵琦

从业时间:10年

设计理念:设计实现客户家居梦想

预约设计师

算算你家装修多少钱

报名即享丰厚赠品,品质装修

免费报价
咨询热线:400-656-9909
20190221103704574636.jpg

精品设计案例

20180612134930523248.jpg 服务号二维码.jpg