立即预约 立即预约
免费定制整装家居

免费定制整装家居

一站置家 全程无忧 一省到底
hide.png

当前位置: 首页 > 装修案例效果图 > 万科四季公园

万科四季公园 166平 现代简约风格效果图

收藏
案例风格 现代简约 案例户型 三居 案例面积 166平米
楼盘名称 万科四季公园 设计师 林凤设计师 案例类型 改善性住宅

设计理念:现代风格,当今社会的主流设计!这个房屋是改善性住房,所以一切以实用为主,干净、简洁、大方是主要设计点!因为居住人口是5口人,所以每一个房间都要好好规划,现在我们就来看看每个空间的设计细节!

客厅
第1张
第2张
餐厅
第1张
卧室
第1张
卫生间
第1张
厨房
第1张
休闲区
第1张
第2张
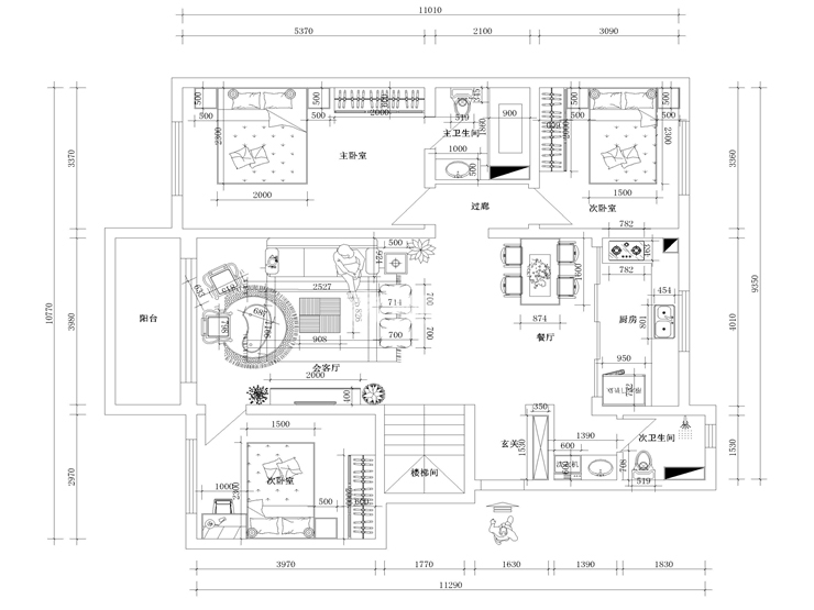
户型图
第1张
  • 案例详情

万科四季公园-166平-现代风格-客厅1.jpg 万科四季公园-166平-现代风格-客厅2.jpg

客厅的整体设计是非常干净简洁的,因为业主是中年人,正是非常沉稳性格时期,所以一定要在设计上突出业主的大气,客厅有一个最大的缺点就是电视背景墙边是下地下室的楼梯,在旁边就是进户门,所以导致电视背景墙的墙面特别的乱,必须想办法吧电视背景墙做到最大最整体,我只是简单的吧电视背景墙的墙面贴上统一的壁纸,并且在电视背景墙棚顶做了一个整体的边棚,让凌乱的电视背景墙墙面统一了起来,显得整体客厅空间非常的干净、大气!

万科四季公园-166平-现代风格-餐厅.jpg

餐厅的设计一样很简单,我并没有把餐桌靠在墙边,而是放在了整个餐厅中间,让整体布局更饱满,有的时候你越是简单越会突出这个空间的特点!

万科四季公园-166平-现代风格-厨房.jpg 万科四季公园-166平-现代风格-卫生间.jpg

卫生间并没有延续客厅的黑白灰色系,因为我想把整个房屋设计的多样性,让卫生间在使用过程中显得温馨些,暖色更居家些!

万科四季公园-166平-现代风格-厨房.jpg

本来厨房的空间我是打算设计敞开式的,但是考虑到业主的年龄和家庭人口生活,所以最后建议做大推拉门,即保留了大气的空间感,又考虑了使用的实用性!

万科四季公园-166平-现代风格-地下室功能区1.jpg 万科四季公园-166平-现代风格-地下室功能区2.jpg 万科四季公园-166平-现代风格-平面图.jpg

案例设计师

林凤设计师

设计师:林凤设计师

从业时间:9年

设计理念:细节是基础,专注是根本

预约设计师

算算你家装修多少钱

报名即享丰厚赠品,享半价装修

免费报价
咨询热线:400-656-9909
20190221103704574636.jpg

精品设计案例

20180612134930523248.jpg 服务号二维码.jpg