立即预约 立即预约
免费定制整装家居

免费定制整装家居

一站置家 全程无忧 一省到底
hide.png

当前位置: 首页 > 装修案例效果图 > 中海和平之门

中海和平之门 84平 北欧风格效果图

收藏
案例风格 北欧 案例户型 二居 案例面积 84平米
楼盘名称 中海和平之门 设计师 林凤装饰设计师 案例类型 改善性住宅

设计理念:本案为北欧风格设计,致力于营造安静舒适的生活空间,所以采用了一个色系。为了不让空间显得沉闷,局部采用黄色来提亮空间。

客厅
第1张
第2张
第3张
第4张
第5张
第6张
餐厅
第1张
卧室
第1张
卫生间
第1张
厨房
第1张
门厅
第1张
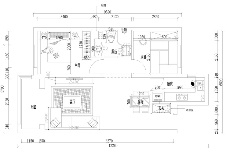
户型图
第1张
  • 案例详情

中海和平之门-84平-北欧风格-客厅1.jpg 中海和平之门-84平-北欧风格-客厅2.jpg 中海和平之门-84平-北欧风格-客厅3.jpg 中海和平之门-84平-北欧风格-客厅4.jpg 中海和平之门-84平-北欧风格-客厅5.jpg 中海和平之门-84平-北欧风格-客厅6.jpg

客厅采用爵士白理石纹理瓷砖让空间更加明亮,背景墙采用壁纸与白钢条结合,与茶几明亮的材质呼应。灯的黑色线条与画框呼应。窗帘与块毯,沙发与壁纸采用同色系颜色,让空间更加沉静舒适。

中海和平之门-84平-北欧风格-餐厅2.jpg

餐厅黑色线条贯穿始终,灯、画框还有餐椅的黑色线条交相呼应,其他都选用了白色,让空间更加整洁简约。

中海和平之门-84平-北欧风格-卧室.jpg

床头墙面采用竖条纹壁纸,在视觉上提升空间的高度,深色的木制地板,稳重大气,纯色的窗帘,让人彻底放松心灵,彰显主人的喜好。

中海和平之门-84平-北欧风格-卫生间.jpg

米黄色的砖让空间更温暖,玻璃浴屏让卫生间形成干湿分离,让生活更方便。坐便上面放置一幅画,让空间不再枯燥乏味。

中海和平之门-84平-北欧风格-厨房.jpg

厨房橱柜采用上浅下深的设计,木纹纹理让厨房更显温馨,让人在做饭的时候也心情愉快。

中海和平之门-84平-北欧风格-门厅.jpg

进门门厅做一个上下鞋柜,中间镂空位置方便放钥匙和手提包,下面镂空放拖鞋,增设灯光,漂亮实用。

中海和平之门-84平-北欧风格-布局图.jpg

案例设计师

林凤装饰设计师

设计师:林凤装饰设计师

从业时间:8年

设计理念:设计源于生活,细节成就品质

预约设计师

算算你家装修多少钱

报名即享丰厚赠品,享半价装修

免费报价
咨询热线:400-656-9909
20190221103704574636.jpg

精品设计案例

20180612134930523248.jpg 服务号二维码.jpg