立即预约 立即预约
免费定制整装家居

免费定制整装家居

一站置家 全程无忧 一省到底
hide.png

当前位置: 首页 > 装修案例效果图 > 万锦香樟树

万锦香樟树 84平 北欧风格效果图

收藏
案例风格 北欧 案例户型 二居 案例面积 84平米
楼盘名称 万锦香樟树 设计师 林凤装饰设计师 案例类型 改善性住宅

设计理念:本案为北欧风格设计,整体以温馨,舒适的感觉为主。颜色以白色为背景色,主色为原木色,点缀跳跃的暖色。让空间舒适而又不失活泼。

客厅
第1张
第2张
第3张
第4张
餐厅
第1张
卧室
第1张
第2张
卫生间
第1张
厨房
第1张
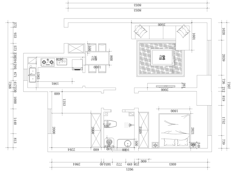
户型图
第1张
  • 案例详情

万锦香樟树-84平-北欧风格-客厅3.jpg 万锦香樟树-84平-北欧风格-客厅1.jpg 万锦香樟树-84平-北欧风格-客厅2.jpg 万锦香樟树-84平-北欧风格-客厅4.jpg

客厅我们采用浅色系的瓷砖地面,沙发的色系我们选择的是比较安静的颜色,时尚的装饰画与温暖的棉麻布,通过不同纹理、使得不同材质相互碰撞,加强每种材质自身的特性,使整个空间既有质朴的气息又不失时尚。电视背景采用大面积原木饰面造型为整个营造舒适感。天花就做减法处理,简单而不失细节。

万锦香樟树-84平-北欧风格-餐厅.jpg

餐厅则大面积留白处理,利用软装打破规整层次,将餐桌与沙发区结合,形成一个通透、连续的空间体验效果,让功能与视觉都得到满足,轻盈而富有张力。

万锦香樟树-84平-北欧风格-卧室1.jpg 万锦香樟树-84平-北欧风格-卧室2.jpg

卧室主体色调以暖色为主,采用轻柔简洁的材料质感,让身心得到放松。

万锦香樟树-84平-北欧风格-卫生间.jpg

卫生间大面积采用灰色瓷砖,墙身地面统一色调,增加空间的延伸性。

万锦香樟树-84平-北欧风格-厨房.jpg

厨房以简单实用为主,有序合理的功能分区为全家人的美餐起到助力的作用,台面操作以洗、切、炒的顺利为准,合理的分配的操作流程,让烹饪成为一种艺术。

万锦香樟树-84平-北欧风格-布局图.jpg

案例设计师

林凤装饰设计师

设计师:林凤装饰设计师

从业时间:8年

设计理念:设计源于生活,细节成就品质

预约设计师

算算你家装修多少钱

报名即享丰厚赠品,享半价装修

免费报价
咨询热线:400-656-9909
20190221103704574636.jpg

精品设计案例

20180612134930523248.jpg 服务号二维码.jpg