立即预约 立即预约
免费定制整装家居

免费定制整装家居

一站置家 全程无忧 一省到底
hide.png

当前位置: 首页 > 装修案例效果图 > 华润幸福里

华润幸福里 88平 美式风格效果图

收藏
案例风格 美式 案例户型 二居 案例面积 88平米
楼盘名称 华润幸福里 设计师 林凤装饰设计师 案例类型 改善性住宅

设计理念:本案以简美风格设计,整个设计主体颜色是米白色,为让视觉效果更加的开阔。简约的美式家具让空间增加温馨优雅的感觉。

客厅
第1张
第2张
第3张
第4张
餐厅
第1张
第2张
第3张
第4张
卧室
第1张
卫生间
第1张
厨房
第1张
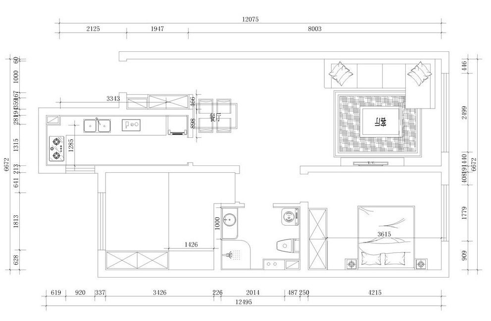
户型图
第1张
  • 案例详情

华润幸福里-88平-简美风格-客厅1.jpg 华润幸福里-88平-简美风格-客厅2.jpg 华润幸福里-88平-简美风格-客厅3.jpg 华润幸福里-88平-简美风格-客厅4.jpg

客厅我们采用浅色系的瓷砖地面配上深色地毯式搭配,是空间明亮而又沉稳,沙发的色系我们选择的是同样浅色的颜色又搭配一个花色深沉的沙发,可以与沙发背景墙多幅装饰画呼应体现出同色系的效果,茶几选用简介明了的黑色系使客厅整体色调搭配和谐。灯饰及背景墙体设计以简欧式风格使整体看起来很有层次感,延续时尚的潮流。

华润幸福里-88平-简美风格-餐厅2.jpg 华润幸福里-88平-简美风格-餐厅3.jpg 华润幸福里-88平-简美风格-餐厅1.jpg 华润幸福里-88平-简美风格-餐厅4.jpg

开放式餐厅空间,这里一定要注意餐桌尺寸,利用好空间位置合理应用布局。欧式复古的灯饰使整体风格统一,餐桌颜色选择深色系与背景墙,浅色理石地面交相呼而又与门的颜色一样体现出和谐高尚。

华润幸福里-88平-简美风格-卧室.jpg

卧室的设计主要以简洁大方舒适为主,全屋采用深色系,搭配亮色背景墙形成强烈反差给人视觉强烈的冲击感,看着十分温馨,给人一种想很快入睡的感觉。

华润幸福里-88平-简美风格-卫生间.JPG

卫生间空间不大采用独立浴室干湿分离便于整洁,瓷砖采用马赛克瓷砖,搭配暖光,整体就是温馨视野宽阔为主。

华润幸福里-88平-简美风格-厨房.jpg

由于厨房空间的原因,我们采用浅色理石背景使空间更明亮,橱柜使用深色系搭配,整体看起来温馨而又有档次,厨具选用规矩方形设计,使厨房看起来整洁有序。

华润幸福里-88平-简美风格-布局图.jpg

案例设计师

林凤装饰设计师

设计师:林凤装饰设计师

从业时间:8年

设计理念:设计源于生活,细节成就品质

预约设计师

算算你家装修多少钱

报名即享丰厚赠品,享半价装修

免费报价
咨询热线:400-656-9909
20190221103704574636.jpg

精品设计案例

20180612134930523248.jpg 服务号二维码.jpg