立即预约 立即预约
免费定制整装家居

免费定制整装家居

一站置家 全程无忧 一省到底
hide.png

当前位置: 首页 > 装修案例效果图 > 海韵广场

海韵广场 73平 美式风格效果图

收藏
案例风格 美式 案例户型 一居 案例面积 73平米
楼盘名称 海韵广场 设计师 林凤装饰设计师 案例类型 改善性住宅

设计理念:本案的设计理念色彩是整个空间的灵魂,质感就是色彩最好的体现形式,繁而简,简而繁。

客厅
第1张
第2张
第3张
第4张
卧室
第1张
卫生间
第1张
厨房
第1张
书房
第1张
门厅
第1张
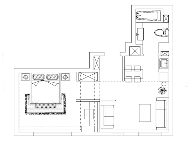
户型图
第1张
  • 案例详情

海韵公寓-73平-好莱坞风格-客厅.jpg 海韵公寓-73平-好莱坞风格-客厅1.jpg 海韵公寓-73平-好莱坞风格-客厅2.jpg 海韵公寓-73平-好莱坞风格-首图.jpg

整个客厅空间充满了现代感,不管是硬装还是软装都是结合每个空间的色彩做出对应的呼应,窗帘的拼接黄色,与爱马仕橙色是最好的同色,也体现了主人的品味,奶牛地毯更是给整个空间增加了色彩。

海韵公寓-73平-好莱坞风格-卧室.jpg

此会客空间没有设计就餐区域,而是考虑了吧台区域可以就餐吧台互用,爵士白的理石面更能凸显客户的身份,让整个空间也非常的舒服,橱柜也没有做太大,因为不是经常用只要保证有哥能洗瓜果梨桃的位置就好。

海韵公寓-73平-好莱坞风格-卫生间.jpg

白色的理石台面,看着是五星级酒店的标准,但其实那是他的家。

海韵公寓-73平-好莱坞风格-厨房.jpg

此会客空间没有设计就餐区域,而是考虑了吧台区域可以就餐吧台互用,爵士白的理石面更能凸显客户的身份,让整个空间也非常的舒服,橱柜也没有做太大,因为不是经常用只要保证有哥能洗瓜果梨桃的位置就好。

海韵公寓-73平-好莱坞风格-书房.jpg 海韵公寓-73平-好莱坞风格-玄关.jpg 海韵公寓-73平-好莱坞风格-平面图.jpg

案例设计师

林凤装饰设计师

设计师:林凤装饰设计师

从业时间:11年

设计理念:设计来源于生活。

预约设计师

算算你家装修多少钱

报名即享丰厚赠品,享半价装修

免费报价
咨询热线:400-656-9909
20190221103704574636.jpg

精品设计案例

20180612134930523248.jpg 服务号二维码.jpg