立即预约 立即预约
免费定制整装家居

免费定制整装家居

一站置家 全程无忧 一省到底
hide.png

当前位置: 首页 > 装修案例效果图 > 天龙家园

天龙家园 140平 现代简约风格效果图

收藏
案例风格 现代简约 案例户型 三居 案例面积 140平米
楼盘名称 天龙家园 设计师 胡迪 案例类型 改善性住宅

设计理念:现代生活中大多数人群以现代生活定居自己的家,简单大气又不缺乏时尚,此设计以事业处在饱和期的夫妇,有上升的空间,希望打造不繁琐生活布局,讲究平时生活品味,又不想太过奢华,以现代风格首先定位,来打造合理的风格布局。

客厅
第1张
第2张
餐厅
第1张
卧室
第1张
第2张
第3张
卫生间
第1张
厨房
第1张
过廊
第1张
第2张
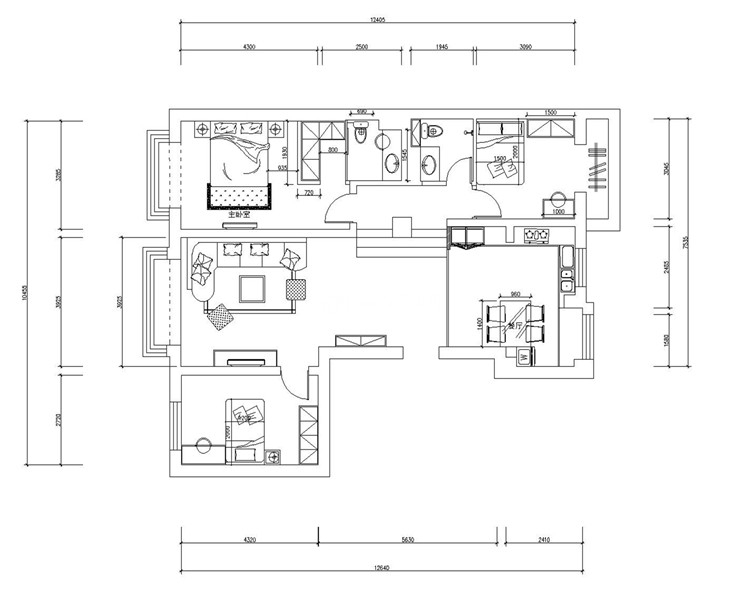
户型图
第1张
  • 案例详情

天龙家园-140平-现代风格-首图.jpg 天龙家园-140平-现代风格-客厅1.jpg

客餐厅简洁大方又不失高调,运用皮质沙发地板上墙,刚与柔搭配,不显得生硬,客厅u型飘窗室外光线引入室内,将客厅采光发挥到极致,完美打造悠闲惬意生活

天龙家园-140平-现代风格-餐厅.jpg

餐厅我喜欢摆在一面靠墙的位置,可以当作吧台来使用,闲暇的时候喝杯红酒,放松一下也是不错选择。

天龙家园-140平-现代风格-卧室.jpg 天龙家园-140平-现代风格-卧室2.jpg 天龙家园-140平-现代风格-主卧.jpg

主卧室说明:主卧室空间较大,我将卧室和衣帽间结合到一起,方便业主拿放衣服,整体色调我采用橙灰色调搭配,温馨也不老气。

天龙家园-140平-现代风格-卫生间.jpg

以卫生间在满足所有需求外,我将卧室化妆区搬到卫生间,业主满是喜欢,增加了卫生间所需功能,主卧室只要求留有床就可以了。

天龙家园-140平-现代风格-厨房.jpg

厨房以简洁大方,配合着业主喜欢的色调搭配,给人以舒适感觉,不会显得杂乱,女业主喜欢闲暇的时候做个点心,所以我满足了所有厨房功能要求,做到合理。

天龙家园-140平-现代风格-过道1.jpg 天龙家园-140平-现代风格-过道.jpg 天龙家园-140平-现代风格-平面布局.jpg

案例设计师

胡迪

设计师:胡迪

从业时间:14年

设计理念:设计以人为本

预约设计师

算算你家装修多少钱

报名即享丰厚赠品,享半价装修

免费报价
咨询热线:400-656-9909
20190221103704574636.jpg

精品设计案例

20180612134930523248.jpg 服务号二维码.jpg