立即预约 立即预约
免费定制整装家居

免费定制整装家居

一站置家 全程无忧 一省到底
hide.png

当前位置: 首页 > 装修案例效果图 > 金地檀越

金地檀越 117平 北欧风格效果图

收藏
案例风格 北欧 案例户型 三居 案例面积 117平米
楼盘名称 金地檀越 设计师 林凤装饰设计师 案例类型 改善性住宅

设计理念:本案主要设计出发点以极简日式为主设计方向为无印良品风

客厅
第1张
第2张
餐厅
第1张
第2张
卧室
第1张
第2张
卫生间
第1张
第2张
厨房
第1张
书房
第1张
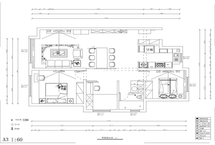
户型图
第1张
  • 案例详情

金地檀悦-117㎡-北欧风格-客厅.jpg 金地檀悦-117㎡-北欧风格-首图.jpg

客厅部分主要以空突出极简的氛围 墙面大面积留白 突出整体空间的干净整洁.墙面基本无造型主要以柜体书柜等陈列出造型背景.堆积陈列品.书籍等突出生活气息。

金地檀悦-117㎡-北欧风格-客餐厅1.jpg 金地檀悦-117㎡-北欧风格-客餐厅2.jpg

餐厅部分为本案中造型较为突出的地方.因为本案的方形进深过长 影响了室内部分的采光所以打通书房的墙面.在在餐厅的位置制作了一个 通透的隔断墙及分割了空间又不影响采光。

金地檀悦-117㎡-北欧风格-次卧.jpg 金地檀悦-117㎡-北欧风格-主卧.jpg

主卧室说明:主卧室空间整体采用大面积留白第一突出设计的一致性第二放大整体空间.主卧室的窗位置原始飘窗砸掉之后改造成储物空间和化妆台避免浪费空间又多了很多功能和储物。 次卧室说明:次卧室空间主要是家里来客人或者父母临时过来居住的空间.次卧室延续了房屋整体设计的初衷和色调主要以实用为主。

金地檀悦-117㎡-北欧风格卫生间  2.jpg 金地檀悦-117㎡-北欧风格-卫生间 1 .jpg

主卧室说明:主卧室空间整体采用大面积留白第一突出设计的一致性第二放大整体空间.主卧室的窗位置原始飘窗砸掉之后改造成储物空间和化妆台避免浪费空间又多了很多功能和储物。 次卧室说明:次卧室空间主要是家里来客人或者父母临时过来居住的空间.次卧室延续了房屋整体设计的初衷和色调主要以实用为主。

金地檀悦-117㎡-北欧风格-厨房.jpg

厨房整体设计主要以鱼肚白6角砖为主迎合整体空间的白色地面采用细麻面马赛克铺贴主要是突出整体风格的细腻感。整体厨房颜色为白色与原木色的搭配及干净整洁又不失家的温馨。

金地檀悦-117㎡-北欧风格-书房.jpg 金地檀悦-117㎡-北欧风格-平面图.jpg

案例设计师

林凤装饰设计师

设计师:林凤装饰设计师

从业时间:10年

设计理念:专注设计 坚持情怀。

预约设计师

算算你家装修多少钱

报名即享丰厚赠品,享半价装修

免费报价
咨询热线:400-656-9909
20190221103704574636.jpg

精品设计案例

20180612134930523248.jpg 服务号二维码.jpg