立即预约 立即预约
免费定制整装家居

免费定制整装家居

一站置家 全程无忧 一省到底
hide.png

当前位置: 首页 > 装修案例效果图 > 绿城全运村

绿城全运村 92平 现代简约风格效果图

收藏
案例风格 现代简约 案例户型 三居 案例面积 92平米
楼盘名称 绿城全运村 设计师 林凤装饰设计师 案例类型 婚房

设计理念:光的流转,自然的代入,空间气氛营造是现代风格最看重的。最大化的利用空间和采光。营造出轻盈并温暖的氛围。

客厅
第1张
第2张
第3张
第4张
餐厅
第1张
卧室
第1张
卫生间
第1张
厨房
第1张
过廊
第1张
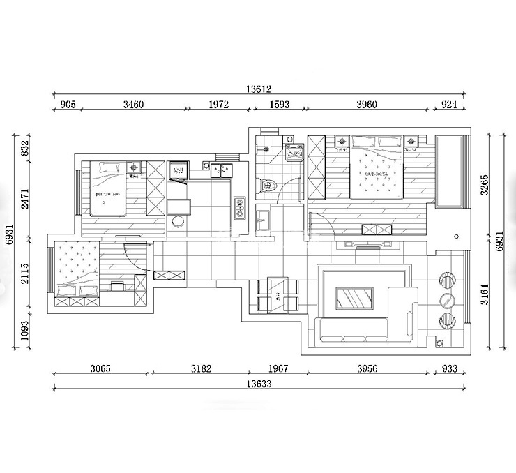
户型图
第1张
  • 案例详情

绿城全运村-92平-现代风格-客厅.jpg 绿城全运村-92平-现代风格-客厅2.jpg 绿城全运村-92平-现代风格-客厅3.jpg 绿城全运村-92平-现代风格-客厅首图.jpg

客厅宜人的尺度,配合明快的色调和质感的材料 使得整个空间 能容纳主任对新家的所有想象和可能性。

绿城全运村-92平-现代风格-餐厅.jpg

木质餐桌搭配布艺座椅,独具现代北欧风格的味道,简约的线条勾勒美好的形态。

绿城全运村-92平-现代风格-卧室.jpg

蓝灰调的空间搭配,简约舒适的床品,设计感十足的灯饰,让整个空间都充满了年轻的情调。

绿城全运村-92平-现代风格-卫生间.jpg

整体干湿分离式的卫生间,淋浴隔断,干净整洁,合理的干湿分离式布局 让使用更加方便。

绿城全运村-92平-现代风格-厨房.jpg

吧台开放式厨房结合,当温暖的灯光照在棉麻质感的吧垫上,一家人在谈笑中 开始轻松的早餐时间。

绿城全运村-92平-现代风格-过廊.jpg 绿城全运村-92平-现代风格-平面.jpg

案例设计师

林凤装饰设计师

设计师:林凤装饰设计师

从业时间:6年

设计理念:设计源于生活,生活因设计而改变。

预约设计师

算算你家装修多少钱

报名即享丰厚赠品,享半价装修

免费报价
咨询热线:400-656-9909
20190221103704574636.jpg

精品设计案例

20180612134930523248.jpg 服务号二维码.jpg