立即预约 立即预约
免费定制整装家居

免费定制整装家居

一站置家 全程无忧 一省到底
hide.png

当前位置: 首页 > 装修案例效果图 > 碧桂园御长白

碧桂园御长白 138平 美式风格效果图

收藏
案例风格 美式 案例户型 三居 案例面积 138平米
楼盘名称 碧桂园御长白 设计师 林凤设计师 案例类型 婚房

设计理念:设计师在充分了解业主的生活及审美诉求后,对整个空间进行梳理并定位为现代美式的基调,在空间功能得到充分合理化重塑后,在硬装设计上用简约的手法和元素。

客厅
第1张
第2张
餐厅
第1张
第2张
第3张
卧室
第1张
第2张
卫生间
第1张
厨房
第1张
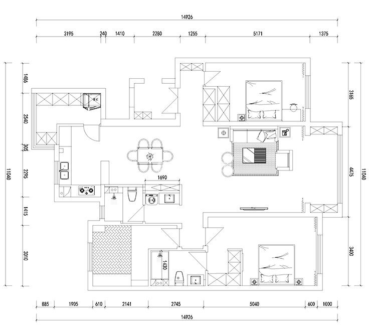
户型图
第1张
  • 案例详情

碧桂园御长白-138平-美式轻奢风格-客厅1.jpg 碧桂园御长白-138平-美式轻奢风格-首图.jpg

客厅在硬装设计上用简约的手法和元素,通过象牙白的墙面,给空间营造一种低调雅致的氛围。在软装设计上用高品质感的配饰,搭配一些精致的软饰和小摆件、用斑马纹调色座椅的家具来点缀空间,来提升整个空间的时尚气质!巧妙地将简单中性色调穿插搭配,透露出沉稳带俏皮的气息,金属线条电视柜提升了客厅空间的品质。

碧桂园御长白-138平-美式轻奢风格-餐厅1.jpg 碧桂园御长白-138平-美式轻奢风格-餐厅2.jpg 碧桂园御长白-138平-美式轻奢风格-餐厅3.jpg

餐厅背景灰色的护墙板镶嵌了一幅橙色跳跃性的插画,演绎角落里的艺术。实木餐桌与软包餐椅,金属色吊灯与客厅相呼应,显现一种精致生活,简单的线条勾勒让餐厅的墙面更具层次感,金属装饰与造型吊灯也让用餐时刻优雅起来。

碧桂园御长白-138平-美式轻奢风格-卧室.jpg 碧桂园御长白-138平-美式轻奢风格-次卧.jpg

主卧室主要色彩采用了灰色系,低饱和度的主卧安静耐看,设计在背景墙上做出金属条造型来提升空间质感,整体透露出的是优雅舒适的感觉,丰富背景墙层次的同时烘托精致氛围。每个区域都有强大的收纳空间,收纳柜的形体,比例,颜色等都能很好的融入整个空间。

碧桂园御长白-138平-美式轻奢风格-卫生间1.jpg

卫生间整体采用爵士白理石纹理,墙地砖的颜色深浅合理搭配,更加展现了空间的层次性,洗手盆墙设置了满墙的镜柜,镜面可以更好的延伸空间的视觉感,打开镜柜后,里面的洗浴用品有序的排放着。

碧桂园御长白-138平-美式轻奢风格-厨房.jpg

厨房运用象牙白橱柜结合带纹理的墙砖,颜色对比鲜明,又显得干净大方且优雅。

碧桂园御长白-138平-美式轻奢风格-平面布局图.jpg

案例设计师

林凤设计师

设计师:林凤设计师

从业时间:8年

设计理念:设计界的一股清流,设计走心最重要。

预约设计师

算算你家装修多少钱

报名即享丰厚赠品,享半价装修

免费报价
咨询热线:400-656-9909
20190221103704574636.jpg

精品设计案例

20180612134930523248.jpg 服务号二维码.jpg