立即预约 立即预约
免费定制整装家居

免费定制整装家居

一站置家 全程无忧 一省到底
hide.png

当前位置: 首页 > 装修案例效果图 > 金地铂悦

金地铂悦 96平 美式风格效果图

收藏
案例风格 美式 案例户型 三居 案例面积 96平米
楼盘名称 金地铂悦 设计师 丁强 案例类型 改善性住宅

设计理念:本案例最大的亮点就是餐厅与厨房衔接的位置,打破传统设计理念,用卡座代替餐椅,同时卡座的背面还可以做吧台。此处的设计是贯穿整个户型的重中之重。

客厅
第1张
第2张
第3张
餐厅
第1张
卧室
第1张
卫生间
第1张
门厅
第1张
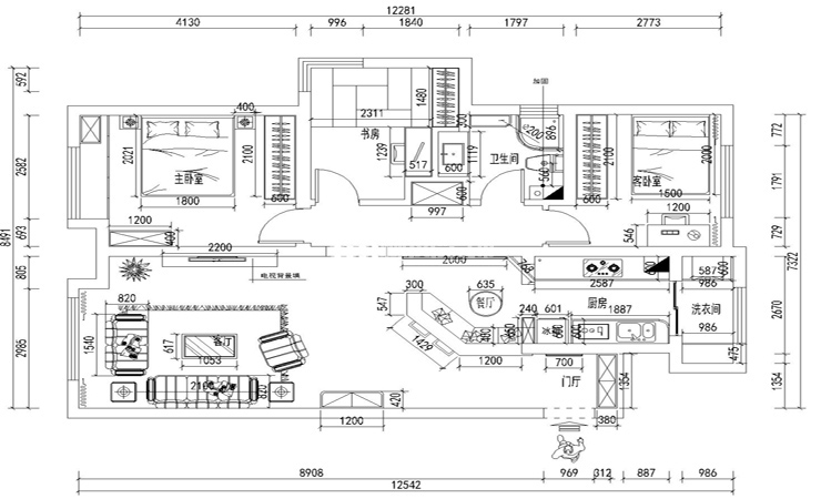
户型图
第1张
  • 案例详情

金地铂悦-96平-美式风格-客厅1.jpg 金地铂悦-96平-美式风格-客厅2.jpg 金地铂悦-96平-美式风格-电视背景墙.jpg

客厅的地面采用500*500的仿古砖,此款的仿古砖自带角花,节省了一些工时,棚顶全部采用120MM欧式成品石膏线,这样可以凸显棚顶的层次感。背景墙采用石膏板造型,内贴壁纸,背景墙最有特点的是两侧的造型。沙发背景墙下半部分采用护墙板,上半部分采用纯色壁布,再配上一些装饰画。

金地铂悦-96平-美式风格-餐厅.jpg

餐厅是跟厨房贯穿起来的,餐厅做了一个大型的吧台式卡座,卡座的中心是运用了一个圆形的餐桌,这样大大的节省了一定的空间,吧台上方还采用了酒柜,使整个空间看起来高档了许多。

金地铂悦-96平-美式风格-主卧室.jpg 金地铂悦-96平-美式风格-卫生间.jpg

卫生间的瓷砖采用灰色大理石纹地砖上墙,地砖上墙的好处就是比以往的墙砖文理立体感墙,视觉效果好,卫生间的墙砖是用800*800的地砖切割而成。

金地铂悦-96平-美式风格-门厅.jpg 金地铂悦-96平-美式风格-平面图.jpg

案例设计师

丁强

设计师:丁强

从业时间:8年

设计理念:用心观察生活,感悟人生真谛,让设计与生活互动

预约设计师

算算你家装修多少钱

报名即享丰厚赠品,品质装修

免费报价
咨询热线:400-656-9909
20190221103704574636.jpg

精品设计案例

20180612134930523248.jpg 服务号二维码.jpg