立即预约 立即预约
免费定制整装家居

免费定制整装家居

一站置家 全程无忧 一省到底
hide.png

当前位置: 首页 > 装修案例效果图 > 龙湖西府原著

龙湖西府原著 127平 新中式风格效果图

收藏
案例风格 新中式 案例户型 三居 案例面积 127平米
楼盘名称 龙湖西府原著 设计师 齐逢辉 案例类型 改善性住宅

设计理念:新中式的风格主要表现在自然简洁,融合中式元素表现出繁与简、明与暗的层次关系,给人带来明快与时尚感。运用天花来划分屋内的区域。木质雕花与护墙板的运用,也是新中式风格比较常见的装饰手法,能给人带来前卫、低调奢华的感觉。 在配饰的选择方面更为现代中式配饰,少了许多奢华的装饰,给本案带来沉稳厚重的感觉,并明快简洁。

客厅
第1张
第2张
第3张
餐厅
第1张
第2张
卧室
第1张
卫生间
第1张
厨房
第1张
衣帽间
第1张
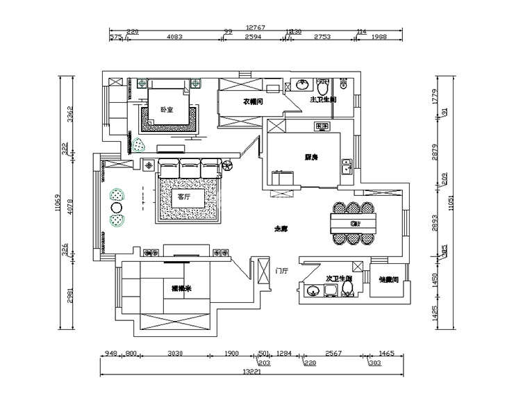
户型图
第1张
  • 案例详情

龙湖西府原著-127平-新中式-客厅 (1).jpg 龙湖西府原著-127平-新中式-客厅 (2).jpg 龙湖西府原著-127平-新中式-客厅 (3).jpg

客厅选择了深色木质护墙板来映衬。现代风味十足的吊灯位居中央。木质和虚光柔和在一起韵味十足。高端大气的大面积灰色地砖,天花局部选用实木雕花装饰。

龙湖西府原著-127平-新中式-餐厅 (2).jpg 龙湖西府原著-127平-新中式-餐厅 (1).jpg

餐厅主要以圆形餐桌为主导,可以容纳多人吃饭,符合业主对空间的需要。还有比较有内涵装饰画,衬托出古典美。

龙湖西府原著-127平-新中式-卧室.jpg

整个屋内只有卧室是隐私空间。对业主的放松和休息起很大作用。在中式高端整洁的基础上不失令人放松的感觉。 为了给居室增添几分暖意,饰以精巧的灯具。在配饰的选择方面更为简洁,床头墙搭配木质元素,衬托出低调奢华感。

龙湖西府原著-127平-新中式-卫生间.jpg

卫生间选择了白色带有现代风的洗手盆,一整面的镜柜也符合卫生间的收纳空间的要求。

龙湖西府原著-127平-新中式-厨房.jpg

厨房选择封闭式。墙面运用米黄色的墙砖,把厨房显得干净整洁。L型的橱柜长达5米有非常多的收纳空间。材质选择了现代常运用的双面板材质,对面加设西厨柜增加使用性对空间感增大很多。

龙湖西府原著-127平-新中式-衣帽间.jpg 龙湖西府原著-127平-新中式-平面图.jpg

案例设计师

齐逢辉

设计师:齐逢辉

从业时间:12年

设计理念:设计为王,只有新颖的设计才会在大浪淘沙中闪烁出与众不同的光芒。

预约设计师

算算你家装修多少钱

报名即享丰厚赠品,品质装修

免费报价
咨询热线:400-656-9909
20190221103704574636.jpg

精品设计案例

20180612134930523248.jpg 服务号二维码.jpg