立即预约 立即预约
免费定制整装家居

免费定制整装家居

一站置家 全程无忧 一省到底
hide.png

当前位置: 首页 > 装修案例效果图 > 万锦香樟树

万锦香樟树 80平 现代简约风格效果图

收藏
案例风格 现代简约 案例户型 二居 案例面积 80平米
楼盘名称 万锦香樟树 设计师 林凤装饰设计师 案例类型 婚房

设计理念:房主想要房屋以简洁、实用、好打理为主,还要给她们留一些自由发挥的空间。所以在本案例中,设计师采用“少即是多”的设计理念,强调“留白”设计,线条简约流畅,各种材质和颜色的搭配,让居住空间更显主人的生活品味与生活态度。

客厅
第1张
第2张
餐厅
第1张
卧室
第1张
卫生间
第1张
厨房
第1张
书房
第1张
门厅
第1张
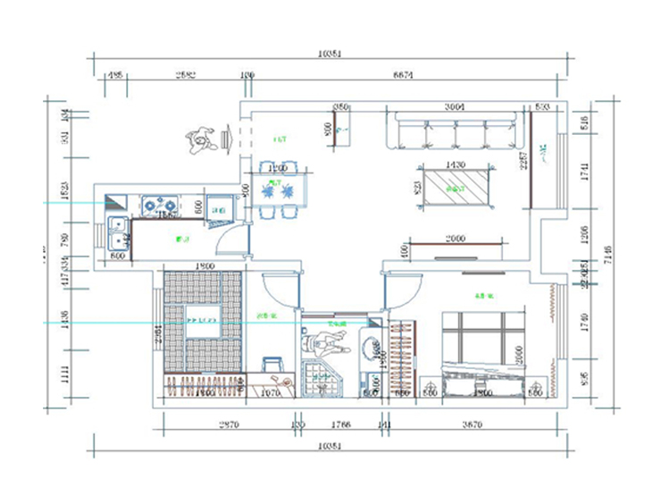
户型图
第1张
  • 案例详情

富文-万锦香樟树 80㎡ - 现代简约-客厅1.jpg 富文-万锦香樟树 80㎡ - 现代简约-客厅2.jpg

客厅是简约的家居空间总能让人感受到舒适放松,客厅运用了点射光的设计手法,光源层次感丰富,氛围感浓厚;配合极简的居家陈设品,和一些色彩艳丽的抱枕,使空间充满了清新的时尚气息。

富文-万锦香樟树 80㎡ - 现代简约-餐厅.jpg

餐厅简单的三时三餐,更多源自内心的宁静。餐厅墙面的装饰隔板与艺术性吊灯,使用餐氛围得到升华,又增加了餐厅的实用性。

富文-万锦香樟树 80㎡ - 现代简约-卧室.jpg

卧室没有做过多的装饰,质朴、清雅,宁静的氛围与简单舒适的塑造出柔和的意境。棚顶采用150宽的石膏线,地面用200宽的深色地板,上下呼应,线条感极强的体现出现代风格的特点。

富文-万锦香樟树 80㎡ - 现代简约-卫生间.jpg

麻雀虽小,五脏俱全,小巧的卫生间把该具备的使用功能都合理安排进来。洗衣机和洗手盆都摆放在一侧,这样增加了储物空间,增大了实用性。

富文-万锦香樟树 80㎡ - 现代简约-厨房.jpg

纵深很长的厨房,定制了转角橱柜,大大满足了储物的空间,微波炉镶嵌在橱柜里,这样增加了操作台面的使用性。

富文-万锦香樟树 80㎡ - 现代简约-书房.jpg 富文-万锦香樟树 80㎡ - 现代简约-玄关.jpg 富文-万锦香樟树 80㎡ - 现代简约-平面图.jpg

案例设计师

林凤装饰设计师

设计师:林凤装饰设计师

从业时间:6年

设计理念:源于生活,生活因设计而改变!

预约设计师

算算你家装修多少钱

报名即享丰厚赠品,品质装修

免费报价
咨询热线:400-656-9909
20190221103704574636.jpg

精品设计案例

20180612134930523248.jpg 服务号二维码.jpg