立即预约 立即预约
免费定制整装家居

免费定制整装家居

一站置家 全程无忧 一省到底
hide.png

当前位置: 首页 > 装修案例效果图 > 盛世田园居

盛世田园居 101平 北欧风格效果图

收藏
案例风格 北欧 案例户型 二居 案例面积 101平米
楼盘名称 盛世田园居 设计师 林凤设计师 案例类型 婚房

设计理念:北欧风格具有简约、自然、人性化的特点,与装饰艺术型风格、流线型风格等追求时髦和商业价值的形式主义不同。本案业主是一对年轻情侣,打算作为婚房。之所以选择北欧风格不仅仅是因为它的简单,更因为它的宁静。但是本案并不是传统的白色系,墙面则是增加蓝色的元素,让宁静中增添一些层次感。家具选择的多是木纹纹理,更加突出自然之感。

客厅
第1张
餐厅
第1张
卧室
第1张
卫生间
第1张
第2张
厨房
第1张
阳台
第1张
儿童房
第1张
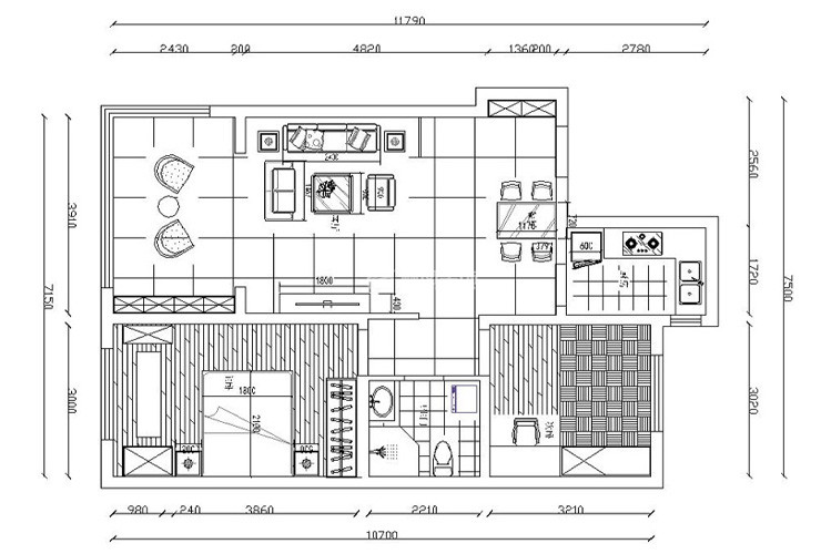
户型图
第1张
  • 案例详情

盛世田园居-101平 北欧风格 客厅.jpg

客厅整体墙面以浅蓝色为主,突出整体空间的明快之感。沙发和门口之间做了隔断隔开,更体现空间的层次感。

盛世田园居-101平 北欧风格 餐厅.jpg

餐厅空间与客厅空间紧密相连,使整个空间变得开阔,空气流通性更好。

盛世田园居-101平 北欧风格 主卧室.jpg

卧室空间与整体风格相呼应,不会有违和感,次卧室做成榻榻米,满足主人住宿、储物、和学习、多种功能。

盛世田园居-101平 北欧风格 卫生间.jpg 盛世田园居-101平北欧风格 卫生间2.jpg 盛世田园居-101平 北欧风格 厨房.jpg

厨房为封闭式,油烟不会跑出厨房,整体橱柜效果更美观。

盛世田园居-101平 北欧风格 阳台.jpg 盛世田园居-101平 北欧风格 儿童房.jpg 盛世田园居-101平北欧风格 户型图.jpg

案例设计师

林凤设计师

设计师:林凤设计师

从业时间:8年

设计理念:因生活而设计,因设计而美好,让你的生活环境,成为他人眼中风景。

预约设计师

算算你家装修多少钱

报名即享丰厚赠品,享半价装修

免费报价
咨询热线:400-656-9909
20190221103704574636.jpg

精品设计案例

20180612134930523248.jpg 服务号二维码.jpg