立即预约 立即预约
免费定制整装家居

免费定制整装家居

一站置家 全程无忧 一省到底
hide.png

当前位置: 首页 > 装修案例效果图 > 美的城

美的城 103平 现代简约风格效果图

收藏
案例风格 现代简约 案例户型 三居 案例面积 103平米
楼盘名称 美的城 设计师 林凤设计师 案例类型 婚房

设计理念:本案是一个三居室的南北户型,为了一对新婚小夫妇准备婚房设计。此案例的风格是现代简约黑白灰风格。简约而不简单,往往这种风格是比较适合中小户型。相对于欧式和田园风光更合适不过了。

客厅
第1张
第2张
第3张
卧室
第1张
第2张
厨房
第1张
书房
第1张
门厅
第1张
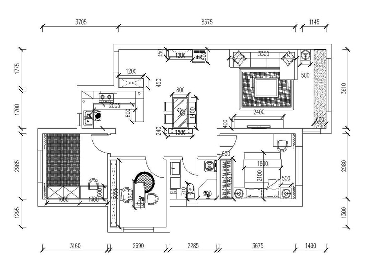
户型图
第1张
  • 案例详情

美的城-103平-现代北欧风格-客厅1.jpg 美的城-103平-现代北欧风格-客厅2.jpg 美的城-103平-现代北欧风格-客厅3.jpg

本案户型客厅空间没有太多拆改,整体造型比较简单,顶面石膏角线,墙面白色乳胶漆,黑白灰风格主要体现在家居配色,空间造型上没有做过多的装饰。

美的城-103平-现代北欧风格-主卧.jpg 美的城-103平-现代北欧风格-次卧.jpg

卧室相对来讲客户更加注重舒适度,灯光照明这部分也建议考虑间接照明例如虚光灯带或者落地灯。床头墙做了一面硬包装饰,增加舒适度又有层次感,相对软包来讲也比较好打理。 榻榻米卧室说明:这个户型的次卧空间比较适合做榻榻米,这个风格是一个温馨的书房,颜色是女主人比较喜欢的粉色系。搭配白色混油的书桌和衣柜,感觉比较明亮时尚。

美的城-103平-现代北欧风格-厨房.jpg

整体格局来看厨房是个敞开式厨房,为了满足客户的要求做了一个吧台,便于平时吃便餐,而且1相对来讲敞开式厨房搭配吧台也是比较完美的结合,整体厨房的选砖搭配基本跟客厅相互呼应,浅灰色墙砖更加耐脏。

美的城-103平-现代北欧风格-书房.jpg 美的城-103平-现代北欧风格-门厅.jpg 美的城-103平-现代北欧风格-平面图.jpg

案例设计师

林凤设计师

设计师:林凤设计师

从业时间:6年

设计理念:一切随心,用心去感悟空间

预约设计师

算算你家装修多少钱

报名即享丰厚赠品,品质装修

免费报价
咨询热线:400-656-9909
20190221103704574636.jpg

精品设计案例

20180612134930523248.jpg 服务号二维码.jpg