立即预约 立即预约
免费定制整装家居

免费定制整装家居

一站置家 全程无忧 一省到底
hide.png

当前位置: 首页 > 装修案例效果图 > 美的城

美的城 84平 北欧风格效果图

收藏
案例风格 北欧 案例户型 二居 案例面积 84平米
楼盘名称 美的城 设计师 林凤设计师 案例类型 改善性住宅

设计理念:本案是一个两居室的南北通透户型,这种类型的户型比较常规,户型没有大多改造问题,分区比较明显,相对来讲厨房和卫生间的拆改部分可以研究一下,本案是结合现代普遍追求以现代风格为主,在一些重要空间稍作一些造型。

客厅
第1张
第2张
第3张
卧室
第1张
第2张
卫生间
第1张
厨房
第1张
门厅
第1张
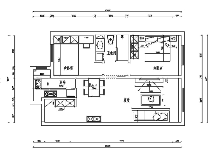
户型图
第1张
  • 案例详情

金地旭辉九韵风华-84平-现代北欧风格-客厅1.jpg 金地旭辉九韵风华-84平-现代北欧风格-客厅3.jpg 金地旭辉九韵风华-84平-现代北欧风格-客厅2.jpg

本案户型客厅的空间棚顶简单做了一些石膏板造型,电视背景墙收了一圈角线。带了一圈虚光灯带。整个空间墙面是灰绿色的壁纸。搭配白色石膏板相呼应,还有客厅空间的原木色地板整体感觉非常的北欧现代。

金地旭辉九韵风华-84平-现代北欧风格-榻榻米.jpg 金地旭辉九韵风华-84平-现代北欧风格-主卧.jpg

主卧室说明:卧室的空间比较重要一些,因为一天在家最多的时间就是卧室了,让疲惫一天的人呢回到卧室休息,所以不需要太多繁琐的造型,简化一些,重要就是考虑家具的舒适度。 榻榻米卧室说明:榻榻米是次卧室的空间,整体柜子的颜色以高级灰色调为主,搭配一些轻快的浅色软装配饰,有轻有重不深沉也不单调,对于像这样简单的南北户型来讲,次卧室考虑、榻榻米的使用几率很大,实用性比较强。

金地旭辉九韵风华-84平-现代北欧风格-卫生间.jpg 金地旭辉九韵风华-84平-现代北欧风格-厨房.jpg 金地旭辉九韵风华-84平-现代北欧风格-门厅.jpg 金地旭辉九韵风华-84平-现代北欧风格-平面图.jpg

案例设计师

林凤设计师

设计师:林凤设计师

从业时间:6年

设计理念:一切随心,用心去感悟空间

预约设计师

算算你家装修多少钱

报名即享丰厚赠品,享半价装修

免费报价
咨询热线:400-656-9909
20190221103704574636.jpg

精品设计案例

20180612134930523248.jpg 服务号二维码.jpg