立即预约 立即预约
免费定制整装家居

免费定制整装家居

一站置家 全程无忧 一省到底
hide.png

当前位置: 首页 > 装修案例效果图 > 万柳塘社区

万柳塘社区 92平 北欧风格效果图

收藏
案例风格 北欧 案例户型 二居 案例面积 92平米
楼盘名称 万柳塘社区 设计师 林凤设计师 案例类型 改善性住宅

设计理念:本案定义为北欧风格,追求舒适及收纳功能。

客厅
第1张
餐厅
第1张
卧室
第1张
卫生间
第1张
厨房
第1张
门厅
第1张
过廊
第1张
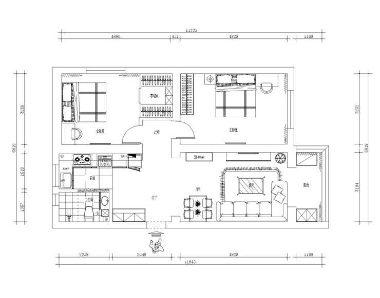
户型图
第1张
  • 案例详情

万柳塘社区-92平-北欧-客厅01.jpg

电视背景墙没有设计复杂的造型,而是由电视组合柜的形式搭配墙面白色硅藻泥文化砖的形式形成空间立体效果。即保证了收纳功能又不失美感。跳色的隔板及局部柜子的颜色,增加了空间的灵动感。

万柳塘社区-92平-北欧-餐厅.jpg

餐厅的空间和客厅的空间形成一个整体,干净简单的餐桌餐椅。温馨感十足。

万柳塘社区-92平-北欧-卧室.jpg

卧室的设计以浅色调为主,床头背景做了浅颜色的调色。几幅挂画,温馨的床品营造出了温馨的氛围。

万柳塘社区-92平-北欧-卫生间.jpg

卫生间设计了干湿分离,功能合理划分,白色理石纹理的墙地砖,整体干净大气。

万柳塘社区-92平-北欧-厨房.jpg

厨房的空间不大,所以要更加注重整体的收纳性。深色的墙地砖配上白色的橱柜。又营造出了立体感。

万柳塘社区-92平-北欧-门厅.jpg 万柳塘社区-92平-北欧-过廊.jpg 万柳塘社区-92平-北欧-平面布置图.jpg

案例设计师

林凤设计师

设计师:林凤设计师

从业时间:5年

设计理念:设计不但要有整体性,更要突出实用性和舒适度,注重人体工程学。简单、实用、美观才是王道!

预约设计师

算算你家装修多少钱

报名即享丰厚赠品,享半价装修

免费报价
咨询热线:400-656-9909
20190221103704574636.jpg

精品设计案例

20180612134930523248.jpg 服务号二维码.jpg