立即预约 立即预约
免费定制整装家居

免费定制整装家居

一站置家 全程无忧 一省到底
hide.png

当前位置: 首页 > 装修案例效果图 > 伊湾尊府

伊湾尊府 106平 现代简约风格效果图

收藏
案例风格 现代简约 案例户型 三居 案例面积 106平米
楼盘名称 伊湾尊府 设计师 林凤设计师 案例类型 改善性住宅

设计理念:本案例定位为现代风格,为了整体空间大小,家具主要采用套色系的柜体搭配,我们结合业主的想法及生活需要,在空间上用少量的颜色点缀空间即可。

客厅
第1张
第2张
第3张
第4张
第5张
卧室
第1张
卫生间
第1张
厨房
第1张
门厅
第1张
过廊
第1张
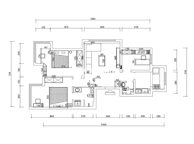
户型图
第1张
  • 案例详情

伊湾尊府-106平-现代风格-客厅2.jpg 伊湾尊府-106平-现代风格-客厅.jpg 伊湾尊府-106平-现代风格-客厅3.jpg 伊湾尊府-106平-现代风格-客厅4.jpg 伊湾尊府-106平-现代风格-客厅5.jpg

客厅我们采用灰色系亮面瓷砖,沙发背景墙的灰色无疑是给空间增加了神秘的色彩,整个客厅的家具全部选择套色,这样深浅搭配使客厅空间显得干净整洁。

伊湾尊府-106平-现代风格-卧室.jpg

卧室我们主打暖色温馨明亮的主色系,所以墙体我们选用浅白和暖黄的灯光来搭配整体空间, 挺拔的衣帽柜我们做到顶棚,储纳空间增加。

伊湾尊府-106平-现代风格-卫生间.jpg

卫生间采用AB版瓷砖做墙体,颜色我们优选上浅下深,卫生间空间小,选择这样的瓷砖搭配可以让空间增加层次感,显得干净整洁。

伊湾尊府-106平-现代风格-厨房.jpg

厨房空间适中,菜盆与灶台不能连在一起,冰箱也都归纳到了这里,这样业主在这里操作起来非常方便。

伊湾尊府-106平-现代风格-进户门.jpg 伊湾尊府-106平-现代风格-过廊.jpg 伊湾尊府-106平-现代风格-平面图.jpg

案例设计师

林凤设计师

设计师:林凤设计师

从业时间:13年

设计理念:一切随心,用心去感悟空间

预约设计师

算算你家装修多少钱

报名即享丰厚赠品,享半价装修

免费报价
咨询热线:400-656-9909
20190221103704574636.jpg

精品设计案例

20180612134930523248.jpg 服务号二维码.jpg