立即预约 立即预约
免费定制整装家居

免费定制整装家居

一站置家 全程无忧 一省到底
hide.png

当前位置: 首页 > 装修案例效果图 > 金源新村

金源新村 174平 北欧风格效果图

收藏
案例风格 北欧 案例户型 三居 案例面积 174平米
楼盘名称 金源新村 设计师 林凤设计师 案例类型 改善性住宅

设计理念:金源新村174平3居室北欧风格的业主是有一对思维开放的小两口,尤其女主人特别爱思考,本次设计依然有让人充满期待的二手房改造,房子的面积诱人但是格局却不理想,设计师接受挑战从改变格局入手,让空间吸引人,还原业主对这个小家的期待。

客厅
第1张
餐厅
第1张
第2张
卧室
第1张
第2张
卫生间
第1张
厨房
第1张
儿童房
第1张
第2张
门厅
第1张
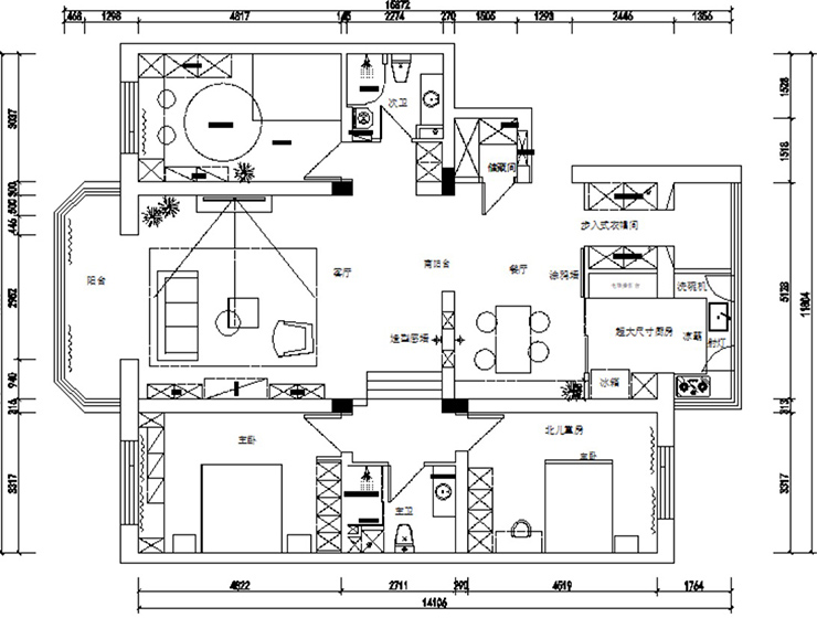
户型图
第1张
  • 案例详情

金源新村-174平-北欧现代风格-客厅2.jpg

连接餐厅和客厅之间原本有一道承重墙,设计师在安全保证的前提下,开了两个一人高的窗,使整个空间变得通透,明亮,空间布局变得巧妙。

金源新村-174平-北欧现代风格--餐厅.jpg 金源新村-174平-北欧现代风格-餐厅2.jpg 金源新村-174平-北欧现代风格--卧室.jpg 金源新村-174平-北欧现代风格--卧室2.jpg

看似简单的主卧室却能体现出设计师用心,就连挂画都选择小宝宝作为主题,舒适的色彩选择让空间变得更加有温度。

金源新村-174平-北欧现代风格--卫生间.jpg

卫生间,体现在细节壁龛的设计完美诠释了功能性,材质的选择流露处再三斟酌的精致感。所谓的简约不是少,而是不多于。

金源新村-174平-北欧现代风格--厨房.jpg

厨房脱离一切浮华与不实用,简洁的材质,实用的柜子格局,组合出最适合屋主的厨房。

金源新村-174平-北欧现代风格-儿童房.jpg 金源新村-174平-北欧现代风格--儿童房2.jpg 金源新村-174平-北欧现代风格--门厅.jpg 金源新村-174平-北欧现代风格-平面图.jpg

案例设计师

林凤设计师

设计师:林凤设计师

从业时间:9年

设计理念:艺术里的炊烟 专业、走心、做生活化有品位设计 私人定制您的家居空间,用设计引导和改变生活态度

预约设计师

算算你家装修多少钱

报名即享丰厚赠品,品质装修

免费报价
咨询热线:400-656-9909
20190221103704574636.jpg

精品设计案例

20180612134930523248.jpg 服务号二维码.jpg