立即预约 立即预约
免费定制整装家居

免费定制整装家居

一站置家 全程无忧 一省到底
hide.png

当前位置: 首页 > 装修案例效果图 > 隆河谷

隆河谷 85平 现代简约风格效果图

收藏
案例风格 现代简约 案例户型 二居 案例面积 85平米
楼盘名称 隆河谷 设计师 李雪 案例类型 改善性住宅

设计理念:本案例定位为现代风格,因为这个房子前期由父母住,后期给孩子当婚房,所以在设计的时候考虑了多重的定位,在深色调的基础上加上亮色作为点缀。

客厅
第1张
餐厅
第1张
卧室
第1张
第2张
第3张
卫生间
第1张
厨房
第1张
门厅
第1张
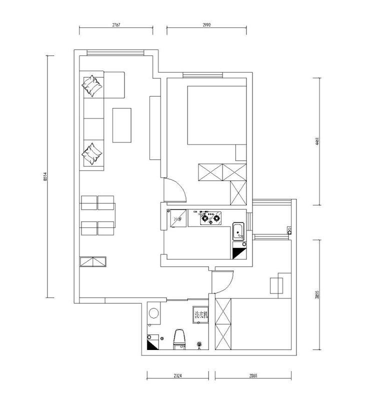
户型图
第1张
  • 案例详情

隆河谷-85平-现代风格-客厅.jpg

客厅我们采用灰色系亮面瓷砖,沙发背景墙的灰色无疑是给空间增加了神秘的色彩,整个空间没有采用吊棚,都是运用的石膏线,一些点缀色的运用增加了活力,这样深浅搭配使客厅空间显得干净整洁的同时又充满了活力。

隆河谷-85平-现代风格-餐厅.jpg 隆河谷-85平-现代风格-卧室.jpg 隆河谷-85平-现代风格-榻榻米(2).jpg 隆河谷-85平-现代风格-榻榻米.jpg

主卧室我们主打的墙面色调为浅灰色,地板也是为了墙面的衔接选择了灰色系的地板,因为卧室面积不是很大,所以整体的素色调会显得空间很大,蓝色调的窗帘与天空的颜色衔接在一起,增加了互动性。

隆河谷-85平-现代风格-卫生间.jpg

卫生间采用通铺横线条的砖,这样的卫生间视觉效果会显得很大,因为本案的卫生间才3平多一点,所以运用这种白灰线条的砖会显得更加明亮,加上卫生间浴屏的使用,增加了光的反射,这样卫生间的亮度会很好。

隆河谷-85平-现代风格-厨房.jpg

厨房空间采用灰色与白色拼接的橱柜,白色的墙砖打底,因为厨房本来就属于比较暗的区域,所以在厨房的设计上我没有运用过深的颜色。

隆河谷-85平-现代风格-门厅.jpg 隆河谷-85平-现代风格-户型图.jpg

案例设计师

李雪

设计师:李雪

从业时间:6年

设计理念:设计源于生活,而又升华于生活。

预约设计师

算算你家装修多少钱

报名即享丰厚赠品,享半价装修

免费报价
咨询热线:400-656-9909
20190221103704574636.jpg

精品设计案例

20180612134930523248.jpg 服务号二维码.jpg