立即预约 立即预约
免费定制整装家居

免费定制整装家居

一站置家 全程无忧 一省到底
hide.png

当前位置: 首页 > 装修案例效果图 > 府城铭邸

府城铭邸 86平 现代简约风格效果图

收藏
案例风格 现代简约 案例户型 二居 案例面积 86平米
楼盘名称 府城铭邸 设计师 林凤装饰全案设计师 案例类型 婚房

设计理念:本案以现代风格设计为主,力求一种自然简约的居室空间,化简为繁,合理的简化居室,整体线条简约流畅,色彩对比强烈,稳重,大气,却又不失品味。有令人眼前一亮的感觉。

客厅
第1张
第2张
第3张
餐厅
第1张
卧室
第1张
卫生间
第1张
厨房
第1张
门厅
第1张
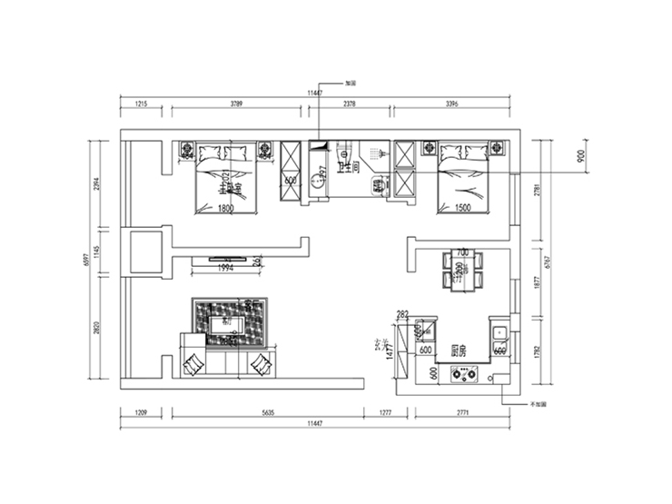
户型图
第1张
  • 案例详情

府城铭邸-86平-现代风格-客厅3.jpg 府城铭邸-86平-现代风格-客厅1.jpg 府城铭邸-86平-现代风格-客厅2.jpg

客厅作为家庭生活活动区域之一,既是全家活动,休闲娱乐的空间,更是家居生活核心区域。本案客厅以黑白灰为主色调,深灰的沙发沉稳大气豹纹的抱枕十分抢眼,看上去不是那么的沉闷。黑白套色的茶几电视柜以简洁的造型,完美的细节,简单的装饰材料,营造出时尚前卫的感觉。

府城铭邸-86平-现代风格-餐厅1.jpg

餐厅的环境设计重要的就是对就餐环境的营造,实际风格要与家居风格一致协调。黑色的烤漆餐桌大气上档次,黑色的装饰画边框勾勒出了生活的美好,灯光很重要不能太强也不能太弱,所以本案以温馨和暖黄为基调,在餐桌的墙面上放一些装饰画增加基调,在搭配一个餐边柜,让整个空间更加丰满。

府城铭邸-86平-现代风格-卧室.jpg

卧室不仅仅是睡眠休息的地方,也是整个家居中最隐私的地方。本案的主卧选用浅色的床,深色的地板和床头柜,再搭配简单的石膏线,整个卧室层次分明。用几株绿植的点缀来营造气氛。整个空间看起来整洁大方,清逸淡雅而又极富现代简约感。

府城铭邸-86平-现代风格-卫生间.jpg

卫生间设计应该以大方,安全方便,易于清洁,美观清洁为主。本案卫生间地面选用简洁防滑的瓷砖为主,灰色的瓷砖整体给人感觉沉稳幽静明亮简洁。手盆的色彩也完全迎合主色调,避免过于繁琐设计,给人一种累赘感。在卫浴上统一色调,让整个空间看起来整洁统一,给人最舒适的感觉。

府城铭邸-86平-现代风格-厨房.jpg

厨房装修是家庭装修重要组成部分,光线充足,通风良好,环境洁净和使用方便是现代厨房装修的基本要求。所以本案在橱柜颜色上采用套色橱柜,上浅下深层次分明,在搭配波西米亚黄墙砖为金属爆棚的厨房带去几分暖意。

府城铭邸-86平-现代风格-玄关.jpg 府城铭邸-86平-现代风格-户型图.jpg

案例设计师

林凤装饰全案设计师

设计师:林凤装饰全案设计师

从业时间:8年

设计理念:在设计中体会生活的真谛。在生活中提炼设计的精髓。

预约设计师

算算你家装修多少钱

报名即享丰厚赠品,享半价装修

免费报价
咨询热线:400-656-9909
20190221103704574636.jpg

精品设计案例

20180612134930523248.jpg 服务号二维码.jpg