立即预约 立即预约
免费定制整装家居

免费定制整装家居

一站置家 全程无忧 一省到底
hide.png

当前位置: 首页 > 装修案例效果图 > 万达广场C组团

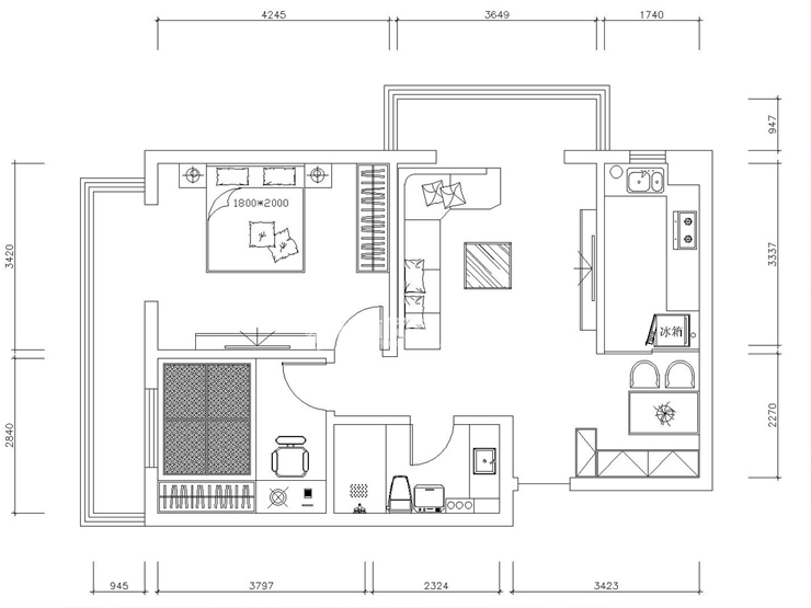
万达广场C组团 95平 欧式风格效果图

收藏
案例风格 欧式 案例户型 二居 案例面积 95平米
楼盘名称 万达广场C组团 设计师 林凤装饰全案设计师 案例类型 改善性住宅

设计理念:以肉粉色为主题的色彩,以欧式为中心设计,打造简欧得设计风格。

客厅
第1张
餐厅
第1张
第2张
卧室
第1张
卫生间
第1张
厨房
第1张
门厅
第1张
过廊
第1张
户型图
第1张
  • 案例详情

万达C主团-95平-简欧风格-客厅.jpg

客厅棚墙面主要运用石膏板吊棚与肉粉色来体现区域的划分,背景墙使用白色石膏线配合花纹镜子,反光度较高得壁纸,白色油漆电视柜相互搭配,加大了空间的视觉效果,整体的客厅大气又舒适。通过室内家具简单富有内容的色彩打造简欧风格的简约大气、奢华气氛。

万达C主团-95平-简欧风格-餐厅.jpg 万达C主团-95平-简欧风格-餐厅2.jpg

餐厅搭配主体白色油漆的餐桌,白色漆面椅子以及肉粉色墙面反光度高一些得壁纸和白色石膏线体现功能分区的色彩统一性、和谐性的设计效果。在满足空间实用性的前提下又满足了其美观性。棚面选用石膏板吊棚,告别古老虚光灯带吊棚,则是在吊棚垭口位置采用石膏线,体现餐厅与整个空间的和谐统一。

万达C主团-95平-简欧风格-卧室.jpg

主卧室使用橙色、淡黄色的软装配饰以及白木色家具为主,背景墙用咖色石膏线及黄色壁纸得搭配,体现其轻奢又不失典雅的空间氛围。使其空间兼备和谐、舒适、轻奢特点,体现出简欧风格的简洁、大气、的气质。空间中使用的材质以及色调显示出主人的喜好与品味。

万达C主团-95平-简欧风格-卫生间.jpg

卫生间地面使用百色的瓷砖,墙面使用黑色白色砖来体现地面与墙面的区别以及增加空间的立体感,白色的洗手盆,金属条镶圈的镜子,增加空间视觉效果,使其空间扩大化。

万达C主团-95平-简欧风格-厨房.jpg

厨房墙选用浅灰白色小瓷砖、白色烤漆橱柜与灰色的石材台面相结合,拓展其空间视觉效果。显示其明亮大气又不失简欧风格简单大气的韵味。

万达C主团-95平-简欧风格-入户.jpg 万达C主团-95平-简欧风格-过道2.jpg 万达C主团-95平-简欧风格-平面图.jpg

案例设计师

林凤装饰全案设计师

设计师:林凤装饰全案设计师

从业时间:8年

设计理念:设计改变生活

预约设计师

算算你家装修多少钱

报名即享丰厚赠品,享半价装修

免费报价
咨询热线:400-656-9909
20190221103704574636.jpg

精品设计案例

20180612134930523248.jpg 服务号二维码.jpg