立即预约 立即预约
免费定制整装家居

免费定制整装家居

一站置家 全程无忧 一省到底
hide.png

当前位置: 首页 > 装修案例效果图 > 华润二十四城

华润二十四城 117平 现代简约风格效果图

收藏
案例风格 现代简约 案例户型 三居 案例面积 117平米
楼盘名称 华润二十四城 设计师 林凤设计师 案例类型 改善性住宅

设计理念:感官上简洁,品味和思想上优雅。生活中,总是不断给自己做加法,衣柜里总需要多加衣服,饭总感觉少道菜,社区里总有分享不完的鸡汤,在信息和生活都在爆炸的状态里,减法,或许使我们有更大的惊喜!

客厅
第1张
餐厅
第1张
卧室
第1张
卫生间
第1张
厨房
第1张
阳台
第1张
门厅
第1张
过廊
第1张
第2张
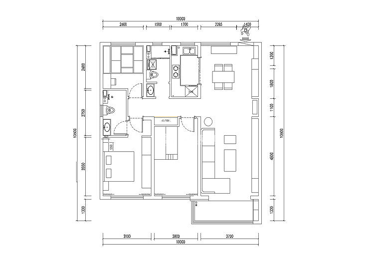
户型图
第1张
  • 案例详情

华润二十四城--117平米--现代风格--客厅.jpg

客厅以白色为主色,灰色,深胡桃色,作为辅助色,以鲜橙色作为点缀色,我们总是喜欢生活中总是有惊喜,可这样时长惊喜就会变成惊吓了,生活的状态应该是平淡中有一点点惊喜。正如我所设计一样,色彩中总有一点亮色出现。

华润二十四城--117平米--现代风格--餐厅.jpg

餐厅区域跟玄关区域相连,选用了黑色实木餐桌和白色的餐椅让餐厅的整个空间显的干净简洁,而长凳的摆放,为以后全家聚餐提供座椅的同时,也作为摆放景观出现,玄关作为与餐桌相连之处,除了本身自带酒柜要融到定制柜子中之外,我们还要有不同的设计,为不影响动线的情况下,做了抹斜处理,而这个颜色,就是我们的对比色!平淡之中,处处透着惊喜。

华润二十四城--117平米--现代风格--卧室.jpg

卧室选择了铺贴地板以灰色系为主色调的卧室 卧室是休息的地方,是整个家里面最舒适的区域,整面柜子是最漂亮的,简单简洁。

华润二十四城--117平米--现代风格--卫生间.jpg

卫生间选择白色墙砖,灰色地砖,希望卫生间干净整洁,黑色浴屏框,让平淡的空间流线更加动感。

华润二十四城--117平米--现代风格--厨房.jpg

封闭式厨房,白色砖,白色橱柜,深色的台面,烟机灶具,我们更清洁。

华润二十四城--117平米--现代风格--阳台.jpg 华润二十四城--117平米--现代风格--玄关.jpg 华润二十四城--117平米--现代风格--过廊.jpg 华润二十四城--117平米--现代风格--过廊柜.jpg 华润二十四城--117平米--现代风格--平面图.jpg

案例设计师

林凤设计师

设计师:林凤设计师

从业时间:10年

设计理念:

预约设计师

算算你家装修多少钱

报名即享丰厚赠品,享半价装修

免费报价
咨询热线:400-656-9909
20190221103704574636.jpg

精品设计案例

20180612134930523248.jpg 服务号二维码.jpg