立即预约 立即预约
免费定制整装家居

免费定制整装家居

一站置家 全程无忧 一省到底
hide.png

当前位置: 首页 > 装修案例效果图 > 上海虹桥青年公寓

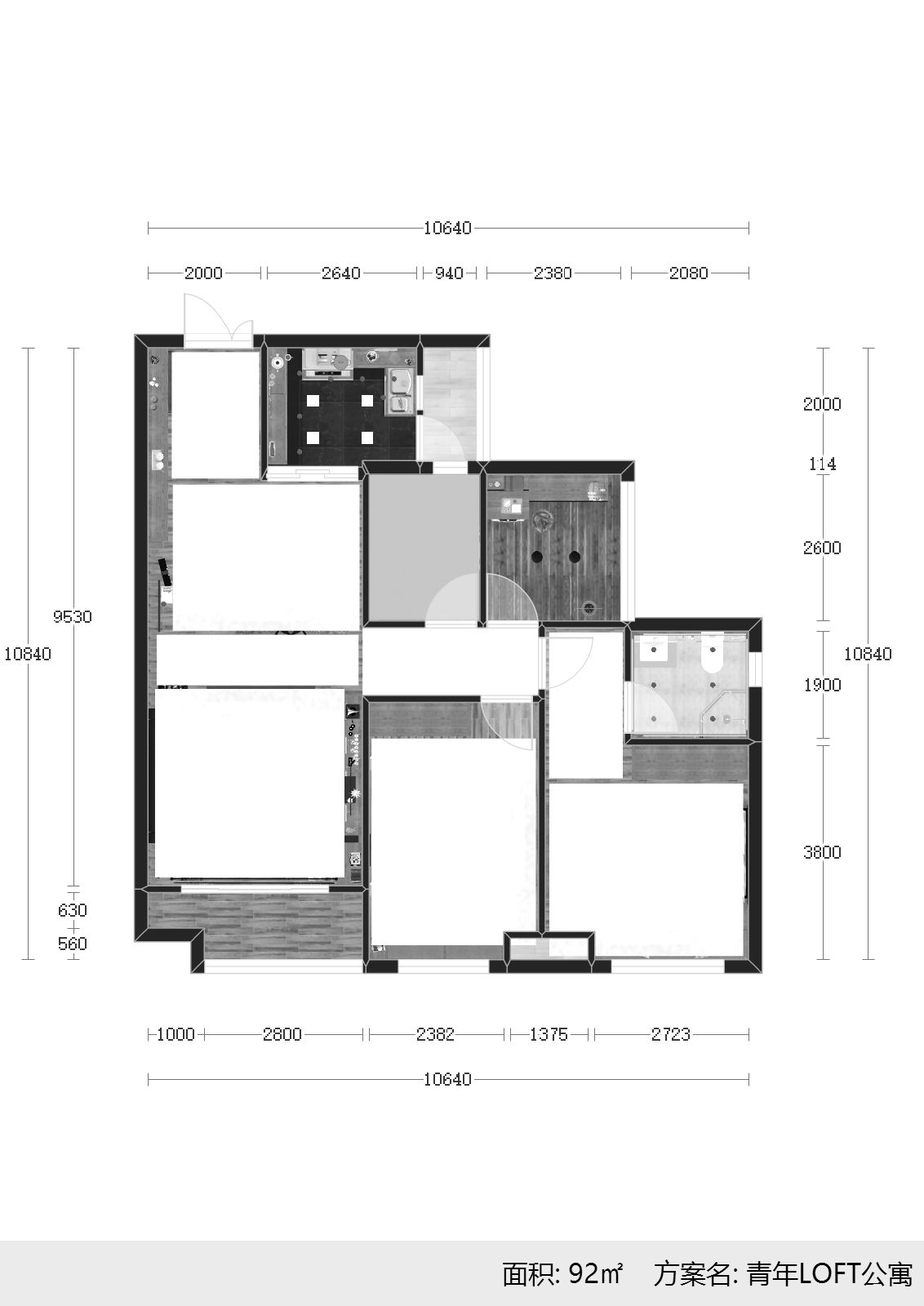
上海虹桥青年公寓 92平 工业风风格效果图

收藏
案例风格 工业风 案例户型 二居 案例面积 92平米
楼盘名称 上海虹桥青年公寓 设计师 林凤装饰精英设计师 案例类型 婚房

设计理念:这款设计方案很有个性,彰显出与众不同的品味。充满艺术感的组合画与整体空间的设计相呼应,充满大气、独特的韵味。

客厅
第1张
餐厅
第1张
卧室
第1张
第2张
第3张
卫生间
第1张
第2张
厨房
第1张
阳台
第1张
户型图
第1张
  • 案例详情

客厅_副本.jpg

客厅墙面大量采用复古红砖的处理形式,增加很多Loft艺术性。使设计方案很有个性,彰显出与众不同的品味。充满艺术感的组合画与整体空间的设计相呼应,充满大气、独特的韵味。

餐厅_副本.jpg

餐厅采用量身定制的黑板粉笔画风格主画面为背景,搭配实木工业风餐椅,通过材质的运用给人一种简洁又不失贵重的质感。

卧室_副本.jpg 卧室2_副本.jpg 卧室3_副本.jpg

卧室大胆融合工业LOFT元素,展现出强烈的递进层次感,高级灰与实木家具的结合,展现一种低调的奢华。

卫生间_副本.jpg 卫生间2_副本.jpg

卫生间依然延续整个方案的主体设计轴向,采用白色为主体颜色而地面则搭配复古风极重的灰色系材质。使得整个空间视觉冲击力极强,充满艺术气息。

厨房_副本.jpg

厨房整体风格延续LOFT的经典元素-木。在本案中墙面使用仿木结构材料配以白色与原木色相结合的极简风格橱柜使得整个空间大气又不失质感。

洗衣间_副本.jpg 平面图1132x1600.jpg

案例设计师

林凤装饰精英设计师

设计师:林凤装饰精英设计师

从业时间:9年

设计理念:设计是一种手段,通过它们可以表达并且随时更新自己的灵感和方向

预约设计师

算算你家装修多少钱

报名即享丰厚赠品,享半价装修

免费报价
咨询热线:400-656-9909
20190221103704574636.jpg

精品设计案例

20180612134930523248.jpg 服务号二维码.jpg