立即预约 立即预约
免费定制整装家居

免费定制整装家居

一站置家 全程无忧 一省到底
hide.png

当前位置: 首页 > 装修案例效果图 > 中海康城

中海康城 105平 现代简约风格效果图

收藏
案例风格 现代简约 案例户型 三居 案例面积 105平米
楼盘名称 中海康城 设计师 林凤设计师 案例类型 婚房

设计理念:在喧嚣的岁月中行走,只有回到家中静心聆听的时候,感觉生命中一段没有污染的空隙,真正体验生命平淡如水的平凡。业主追求简单生活的人,更多的是品味生活,在注重空间的情况下舍去繁杂的造型,运用元素和色彩的搭配也能打造出风格明确而温馨的家

客厅
第1张
餐厅
第1张
卧室
第1张
第2张
第3张
卫生间
第1张
厨房
第1张
门厅
第1张
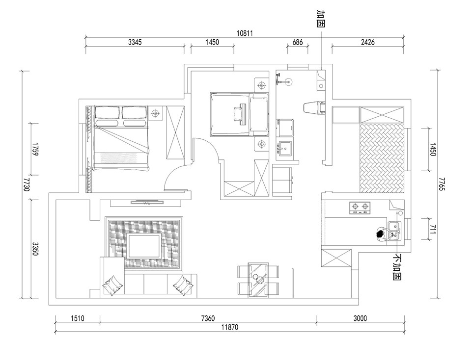
户型图
第1张
  • 案例详情

中海康城-105平-现代简约风格-客厅.jpg

客厅背景墙是硅藻泥,有质感却不高调,用灰色使整个空间柔和,又不显得空间特别冷,实木的家具配饰,显得大气成熟,整衬托整体风格要求的实质。

中海康城-105平-现代简约风格-餐厅.jpg

餐厅的部分采用隔板造型装饰,呼应整体色彩,木质的餐厅配备,跟客厅的电视柜,茶几所呼应

中海康城-105平-现代简约风格-次卧.jpg 中海康城-105平-现代简约风格-主卧1.jpg 中海康城-105平-现代简约风格-主卧2.jpg

主卧室说明: 业主想要一个独立的衣帽间,所以对主卧进行了拆改,最大化的利用了空间;次卧室说明:简单的卧室,没有过多华丽的装饰,也没有过多的色彩点缀,但是却能在简单的设计中演绎出个性的特质。衣柜柜门选择移门不占用床边过道的空间,方便使用

中海康城-105平-现代简约风格-卫生间.jpg

卫生间浅色砖搭配了深颜色的洗漱柜,不会让空间那么压抑,大面的镜子更是拉伸了整体空间感。

中海康城-105平-现代简约风格-厨房.jpg

业主对厨房的要求很高,储物功能上,功能配备上,效果上,一个都不能少,随之采用ab板的柜子进行上下呼应,达到效果要求,储物上,L型的橱柜设计让储物功能最大化。

中海康城-105平-现代简约风格-门厅.jpg

玄关考虑的是进门的使用性能,让空间变的干净利索,所有的进门衣物都能储备其中,保证了后期使用的功能性。

中海康城-105平-现代简约风格-平面图.jpg

案例设计师

林凤设计师

设计师:林凤设计师

从业时间:5年

设计理念:为生活而设计,设计源于懂生活

预约设计师

算算你家装修多少钱

报名即享丰厚赠品,品质装修

免费报价
咨询热线:400-656-9909
20190221103704574636.jpg

精品设计案例

20180612134930523248.jpg 服务号二维码.jpg