立即预约 立即预约
免费定制整装家居

免费定制整装家居

一站置家 全程无忧 一省到底
hide.png

当前位置: 首页 > 装修案例效果图 > 紫禁壹号院

紫禁壹号院 475平 混搭风格效果图

收藏
案例风格 混搭 案例户型 别墅 案例面积 475平米
楼盘名称 紫禁壹号院 设计师 林凤装饰设计师 案例类型 改善性住宅

设计理念:楼上为欧式风格元素以采用爵士白的罗马柱和大理石及白色的护墙板为主色基调配以蒂芙尼蓝的家具与窗帘作为点缀营造出一种欧式典雅的空间氛围。楼下则采用中式的设计手法配以水系景观及绿植形成一种独特的室内氛围。

客厅
第1张
餐厅
第1张
卧室
第1张
第2张
卫生间
第1张
厨房
第1张
儿童房
第1张
休闲区
第1张
第2张
户型图
第1张
第2张
第3张
  • 案例详情

紫金一号院-475平-混搭-首图.jpg

客厅顶面采用石膏花线作为顶面装饰与地面的石材拼花相对应,电视背景墙为一块深灰色的天然石材为整体客厅空间加上一丝沉稳与硬朗。

紫金一号院-475平-混搭-餐厅.jpg

餐厅顶面与客厅的设计手法一致采用石膏花线作为顶面装饰与地面的石材拼花相对应,中间配以欧式古典餐桌形成三点一线使空间的画面感更强。

紫金一号院-475平-混搭-主卧室2.jpg 紫金一号院-475平-混搭-主卧室1.jpg

主卧室的墙面为大面积白色护墙板床头背景墙配以米黄色软包装饰,顶面柔和的灯光和地面原木色人字拼的实木地板为空间营造出一种舒适 典雅 安静的氛围。

紫金一号院-475平-混搭-卫生间.jpg

卫生间采用的是干湿分离的设计方式,方便卫生间后期的打理。 考虑到卫生间地面湿滑的特性所以在淋浴房内的地面上做了防滑式设计在考虑到功能的同时也大大的增加的安全性。

紫金一号院-475平-混搭-厨房.jpg

厨房为定制的U形橱柜可以最大化的利用可操作空间,墙面采用暖色系的墙砖与地面的大理石颜色相呼应,使空间干净整洁大气。

紫金一号院-475平-混搭-老人房.jpg

老人房

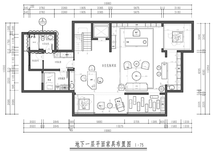
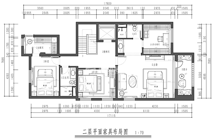
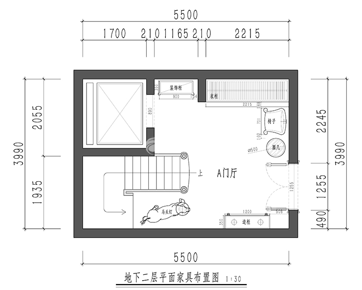
紫金一号院-475平-混搭-茶室区.jpg 紫金一号院-475平-混搭-休闲区.jpg 紫金一号院-475平-混搭-地下二层平面图.jpg 紫金一号院-475平-混搭-地下一层平面图.jpg 紫金一号院-475平-混搭-二层平面图.jpg

案例设计师

林凤装饰设计师

设计师:林凤装饰设计师

从业时间:7年

设计理念:设计·演绎生活

预约设计师

算算你家装修多少钱

报名即享丰厚赠品,享半价装修

免费报价
咨询热线:400-656-9909
20190221103704574636.jpg

精品设计案例

20180612134930523248.jpg 服务号二维码.jpg